Российская археология, 2023, № 2, стр. 64-80
Усадьбы московской знати XIV–XV вв. на Подоле Московского Кремля
К. И. Панченко 1, *, Н. А. Макаров 1, **, А. А. Карпухин 1, ***, В. Ю. Коваль 1, ****
1 Институт археологии РАН
Москва, Россия
* E-mail: pakoi@mail.ru
** E-mail: nmakarov10@yandex.ru
*** E-mail: karpukhin.a@rambler.ru
**** E-mail: kovaloka@mail.ru
Поступила в редакцию 03.11.2022
После доработки 03.11.2022
Принята к публикации 10.01.2023
- EDN: RGLILY
- DOI: 10.31857/S0869606323020150
Аннотация
В статье дается предварительное общее описание результатов археологических исследований мокрых культурных слоев в Тайницком саду Московского Кремля в 2020 г. Собранные в ходе раскопок материалы представляют исключительный интерес для изучения стратиграфии и хронологии культурных отложений на Подоле, дают редкую для Кремля возможность дендрохронологического датирования отдельных построек и добавляют много нового к характеристике культуры Москвы и социального облика владельцев кремлевских усадеб XIV–XV вв. Застройка исследованного участка Подола начиная с середины XIV в. была плотной, размеры владений неизвестны. Набор вещевых находок рассматриваемого периода содержит как обычные для городского обихода бытовые и хозяйственные вещи, так и предметы, связанные с престижным стилем жизни и воинскими занятиями. Усадьбы середины–второй половины XIV в. можно рассматривать как часть кремлевских дворовладений Тимофея Васильевича Вельяминова или его ближайших родственников.
Археологические исследования двух последних десятилетий в Московском Кремле показали, что стратифицированные культурные отложения и остатки городских усадеб XIV–XV вв. на значительной части его территории разрушены или повреждены при строительных работах XVII–XX вв. Выявление каждого участка с такими напластованиями и изучение его раскопками даже на небольшой площади – большая удача. Один из таких участков с влажными культурным слоем, сохраняющим дерево, был открыт и исследован в 2020 г. в Тайницком саду, у подошвы Боровицкого холма и частично на его современном склоне, в 40 м юго-западнее Константино-Еленинской башни. Здесь в 1843 г. сделана одна из самых знаменитых кремлевских находок – медный кувшин с пергаментными и бумажными документами XIV в., в том числе жалованными грамотами великого князя Дмитрия Ивановича 1371–1372 гг. (Кучкин, 1995. С. 23, 24; Панова, 2016. С. 93, 94, 96. Рис. 2). Общая мощность культурных отложений на этом участке составляет от 6.7 до 12.4 м.
Раскопки 2020 г. сопровождали ремонтные работы, связанные с укреплением фундамента хозяйственной постройки нового времени. Новые раскопы располагались в 30 м к северу от раскопов 2007 г. на Подоле, где впервые в истории археологического изучения Кремля на широкой площади исследованы влажные культурные отложения и усадьбы с остатками деревянных построек начала XIV–XVII в., образующие последовательность сменяющих друг друга строительных ярусов (Макаров и др. 2008; Дубровин, Коваль, 2014. С. 96–101; Коваль, 2016. С. 437). Площадь двух раскопов 2020 г. составила всего 65 м2, но собранные здесь материалы представляют исключительный интерес для изучения стратиграфии и хронологии культурных отложений на Подоле, дают редкую для Кремля возможность дендрохронологического датирования отдельных построек и добавляют много нового к характеристике культуры Москвы и социального облика владельцев кремлевских усадеб XIV–XV вв.
Раскопы 2020 г. на Подоле были заложены около углов строения XIX в. (погреба), на участках, вскрытых для укрепления его фундаментов, после снятия техногенного слоя и строительного мусора, отложившегося у склона холма в XIX–XX вв. Характер культурных отложений и состав находок в двух раскопах заметно различались. В настоящей статье кратко представлены материалы раскопа 1, заложенного у южного угла погреба, где вскрыта большая площадь (50 м2) и получены более репрезентативные данные о поселенческом освоении и застройке Подола (рис. 1–8).
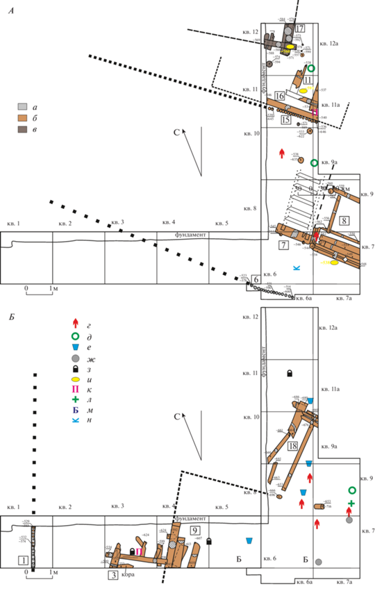
Рис. 1.
Стратиграфические профили раскопа 1. Обозначения: римские цифры – номера ярусов; арабские в квадратных рамках (здесь и на рис. 2–4) – номера сооружений; Z – щепа; V – уголь; II – навоз; = – глина; Т – древесный тлен; красный четырехлистник – кусочки печины; желтая заливка – песок. Цвет слоев в профиле условно соответствует настоящему.
Fig. 1. Stratigraphic profiles of excavation site 1

Рис. 2.
А – сооружения 1 и 2-го ярусов; Б – сооружения 5-го яруса. Условные обозначения: а – ярус?; б – ярус 1; в – ярус 2; г – предметы вооружения; д – перстни; е – импортная керамика; ж – пломбы; з – замки; и – монеты; к – стили; л – нательные кресты; м – бляхи; н – книжные застежки.
Fig. 2. A – structures of strata 1 and 2; Б – structures of stratum 5

Рис. 3.
Сооружения 4-го яруса. Условные обозначения: а – предметы вооружения (цифрами дано количество более 1 шт.); б – перстни; в – импортная керамика; г – пломбы; д – замки; е – кошелек; ж – энколпион.
Fig. 3. Structures of stratum 4

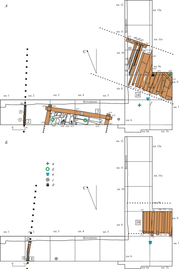
Рис. 4.
А – сооружения 6-го яруса; Б – сооружения 7-го яруса. Условные обозначения: а – нательные кресты; б – перстни; в – импортная керамика; г – пломбы; д – замки.
Fig. 4. A – structures of stratum 6; Б – structures of stratum 7

Рис. 5.
Вещевой материал из культурных отложений 4-го яруса. 1 – перстень; 2 – нательный крест; 3, 5 – русские пломбы; 4 – западноевропейская пломба; 6 – энколпион; 7 – кошелек. 1–6 – изделия из цветного металла; 7 – кожа.
Fig. 5. Artefacts from cultural deposits of stratum 4

Рис. 6.
Железные предметы вооружения из культурных отложений 4-го яруса. 1 – панцирные пластины; 2, 3 – накладки на шлем; 4–7 – наконечники стрел; 8 – фрагмент кольчужного плетения; 9 – оковка ножен; 10–12 – поясная гарнитура.
Fig. 6. Iron weapons from the cultural deposits of stratum 4

Рис. 7.
Вещевой материал из культурных отложений 5-го яруса. 1 – стиль; 2 – замок; 3 – ключ; 4 – наконечник стрелы; 5, 6 – бляхи с золотой плакировкой; 7 – поясная накладка; 8, 9 – русские пломбы; 10 – перстень. 1, 3, 4, 7 – железо; 2, 5, 6 – биметалл; 8–10 – цветной металл.
Fig. 7. Artefacts from cultural deposits of stratum 5

Рис. 8.
Вещевой материал из культурных отложений 1–3-го ярусов (2, 4, 5, 9–11), 6-го яруса (3, 7, 12), 7-го яруса (6), 8-го яруса (1, 8). 1 – нож (железо, дерево); 2, 3 – биметаллические замки; 4 – костяное писало; 5 – медная чашечка; 6 – деревянный гребень; 7 – крест (цветной металл, эмаль); 8 – стеклянная бусина; 9 – серебряная монета Василия Дмитриевича; 10, 11 – перстни (цветной металл); 12 – фрагмент стеклянного перстня.
Fig. 8. Artefacts from cultural deposits of strata 1–3 (2, 4, 5, 9–11), stratum 6 (3, 7, 12), stratum 7 (6), and stratum 8 (1, 8)

В раскопе 1 под слоем техногенного грунта и строительного мусора толщиной до 4 м залегала свита культурных напластований, основу которой составляла влажная, преимущественно темно-коричневая супесь со щепой и навозом с отдельными прослойками щепы и песка и несколькими углистыми прослойками (рис. 1). Общая мощность этих напластований на разных участках составляла от 1.7 до более 3 м, однако исследовать полностью как верхние, так и нижние горизонты культурного слоя и довести раскоп до материка на всей площади не удалось из-за строительных ограничений. В этой толще на разной глубине вскрыты и расчищены остатки 19 деревянных сооружений, образующие 7 строительных ярусов. Среди этих сооружений – остатки шести срубов, четырех дворовых настилов, двух настилов пола и шести частокольных оград. В границы раскопа вошли лишь части сооружений, конструктивное устройство и функциональное назначение некоторых из них остается неясным. Из культурного слоя происходит почти 400 находок – предметы из металла, стекла, камня, кости, рога, кожи, дерева, фрагменты тканей и около 2.5 тыс. обломков керамики.
Общий период формирования этих культурных напластований определяется в рамках XIV–XV вв. Для датирования нижних горизонтов культурного слоя существенно отсутствие в них хроноиндикатров середины–второй половины XIII в., в том числе стеклянных браслетов, широко бытовавших в Москве в это время (Столярова, Коваль, 2017. С. 92; Феребов, 2018. С. 199). Датировка верхних горизонтов, судя по находкам монет Василия Дмитриевича при отсутствии монет второй половины XV в., не выходит за рамки середины XV в. Таким образом, накопление всей толщи культурного слоя происходило в течение периода протяженностью не более 150 лет. Ниже мы попытаемся уточнить хронологические позиции отдельных горизонтов и строительных ярусов, основываясь на вещевых материалах и дендродатах, полученных в лаборатории естественнонаучных методов ИА РАН.
Дендрохронологические даты образцов древесины сооружений из раскопа 2020 г. получены с использованием в качестве абсолютных эталонов древесно-кольцевых рядов деревянных конструкций, выявленных при работах 2007 г. на Подоле Московского кремля в 30 м к югу. Последние, в свою очередь, получили календарную привязку путем перекрестного датирования по материалам мостовых Нутной и Козьмодемьянской улиц Великого Новгорода (Карпухин, Соловьева, 2017. С. 14, 15). Дополнительная проверка датировок, проведенная по древесно-кольцевым хронологиям мостовых Козьмодемьянской и Великой улиц, вскрытых в Неревских раскопах 1959 г. (Колчин, 1963), как и датирование сооружений раскопа в Тайницком саду 2007 г., с учетом поправки в –1 год к дендрохронологической шкале Новгорода, обоснованной О.А. Тарабардиной (2011; 2012. С. 634), подтвердили правильность результатов.
Верхняя часть влажных культурных отложений в раскопе, которой соответствуют сооружения 1–3 ярусов, представляла собой слои коричневой или темно-коричневой супеси со щепой и навозом с прослойками щепы и углей общей мощностью до 90 см. В этих слоях расчищены остатки трех срубных построек, конструкция из вертикальных столбов, скрепленных горизонтальными брусьями, и два частокола (рис. 1, 2). Эти сооружения относятся к трем различным ярусам, все они сохранились фрагментарно, в границы раскопа вошли лишь небольшие части построек.
Одно из наиболее поздних по своему стратиграфическому положению сооружений, относящихся к 1 ярусу, – частично сохранившаяся конструкция из вертикальных столбов, соединенных горизонтальными брусками с прямоугольными вырубками на концах (для крепления к столбам) и продольными пазами (сооружение 8). Внутри его расчищены плахи и бревна, лежащие параллельно юго-западной стене, образуя подобие настила. Рядом с северо-западной стеной находился деревянный упор для лестницы, закрепленный на поверхности двумя колами, с двумя вырубленными в нем пазами для ее опор. Судя по расположению пазов, лестница находилась вдоль северо-западной стены сооружения 8. Облик и назначение этой конструкции окончательно не прояснены. Возможно, это подклет или закрытое пространство под крыльцом, галереей снаружи здания.
К этому же ярусу могут быть отнесены остатки одного из срубов, (сооружение 16), от которого сохранились части нижнего венца с долевой выемкой для досок пола или фиксации верхнего бревна и настила пола из двух досок и нижней лаги (сооружение 11). Дерево обуглено, очевидно, постройка погибла в пожаре. Вероятно, с этой постройкой связан частокол (сооружение 15). Подобное расположение оград вполне закономерно для стесненных городских условий, такая же планировка сооружений на усадьбе известна в Переславле Рязанском (Завьялов, 2013. С. 34, 35. Рис. 8).
От второго сруба (сооружение 17), относящегося к более раннему ярусу 2, в раскоп вошел угол с двумя венцами, сложенными в обло чашей вверх, и подкладками из деревянных плах под нижним венцом. От третей срубной постройки еще более раннего горизонта (сооружение 10, ярус 3), вероятно, двухкамерной, сохранились нижние венцы одной стены с вырубленной чашкой для укладки перпендикулярного бревна, короткими подкладками и завалом жердей от кровли (?), среди которых находилась “курица” – крюк, использовавшийся для крепления кровельного теса. На остатках конструкции заметны следы пожара. Два частокола, ориентированные в направлении СЗ– ЮВ параллельно стенам построек, указывают на усадебное устройство территории, но сооружение 6 не может быть отнесено к какому-либо определенному ярусу.
Из верхней части влажного культурного слоя (уровень 1–3 ярусов) происходит 54 находки. Среди них преобладают обычные бытовые вещи и орудия труда: нож, две обоймицы от рукоятей ножей, деревянная рукоять ножа, кожаные ножны и оковка от ножен, две иглы, два шила, обломок косы-горбуши, кресало, цилиндрический замок (рис. 8, 2), пробой, два пряслица – керамическое с зеленой поливой и известняковое, сундучная накладка, керамическая игрушка-медведь. Украшения представлены двумя щитковыми перстнями из цветного металла (рис. 8, 10, 11), предметы воинского снаряжения – двумя кольчужными кольцами. В числе редких предметов – фрагменты чашечки-лампадки из цветного металла (рис. 8, 5) и роговое острие с геометрическим орнаментом (стиль для письма?) (рис. 8, 4). Здесь же найдены книжная застежка и фрагмент белоглиняной поливной плитки пола, использовавшейся в храмовых постройках.
Для датирования культурного слоя на уровне 1–2 ярусов важны находки трех монет медного пула Василия Дмитриевича начала XV в., найденного рядом с сооружением 8, серебряной именной денги Василия Дмитриевича (первое десятилетие XV в., чеканилась до монетной реформы 1413 г.), найденной под полом сооружения 16, и серебряной анонимной денги Василия Дмитриевича с изображением петуха и круговой надписью: ПЕЧАТЬКНЯЗЯВЕЛК (последнее десятилетие XIV в.), найденной в подошве 2-го яруса вблизи сооружения 17 (рис. 8, 9)11.
Более 40% вещевых находок, собранных в раскопе, происходит из культурных напластований, залегающих на глубине 590–640 см, связанных с жизнью усадьбы (ярус 4), основные постройки которой оказались за пределами раскопа и гибелью ее в пожаре. Слой влажной гумусированной супеси с низким содержанием щепы, высоким содержанием навоза и выбросами материкового песка перекрыт прослойкой песка с углями, сформировавшейся, вероятно, при обустройстве участка после пожара (рис. 1). К этому ярусу относится лишь два сооружения: часть частокольной ограды из тонких жердей (сооружение 13) и конструкция из бревен, одно из которых было направлено параллельно частоколу (сооруже-ние 12), представляющая собой, скорее всего, остатки дворового настила (рис. 3). Из 178 предметов, собранных в этих напластованиях, 57 относятся к отложениям, формировавшимся в процессе обычной городской жизни, большая же часть (121 предмет) происходит из прослойки песка и углей, связанной с гибелью усадьбы в пожаре и последующей расчисткой участка. Большинство этих вещей несет на себе следы пребывания в огне, а некоторые полностью оплавились.
В составе находок из слоя 4-го яруса присутствует ряд редких предметов, связанных с обиходом элиты, торговлей и военными занятиями. Среди них – крест-энколпион с прямыми, немного расширяющимися лопастями, с рельефным изображением Распятия на лицевой створке и оборотной створкой с гравированным ободком по контуру лопастей (рис. 5, 6). Обе створки плоские, с неглубоким ковчежецем для вложения, на лицевой створке – остатки позолоты, оглавие 14-гранное. Энколпионы с прямыми лопастями и рельефными изображениями Распятия представлены в металлопластике XIV–XVI вв. единичными экземплярами, все они различаются деталями оформления (Ханенко Б.И., Ханенко В.Н., 1899. С. 23. Табл. X. Рис. 122; Асташова и др., 2013. Рис. 258, 261; Андреев, 2018. С. 222, 223. Рис. 11, 2). Из трех товарных пломб одна западноевропейская, использовавшаяся для опломбирования тканей, производившихся в г. Турне, две другие русские (определение П.Г. Гайдукова) (рис. 5, 3–5). На одной из них надписи и изображения плохо читаются. Вторая пломба с двусторонней надписью, на одной стороне – круговой: СЕ ПЕЧАТЬ, на другой – четырехстрочной: КНЯ\ЗЯВЕ\ЛИКО\ГО. П.Г. Гайдуков указал пять известных ему аналогичных пломб, все они происходят из раскопок в Москве: на Подоле Кремля, на Романовом дворе и на Софийской набережной. Высоким качеством художественного исполнения выделяется кожаный кошелек с тисненым растительным орнаментом (рис. 5, 7).
Редкие находки – две четырехугольные выпуклые пластины с выступами посредине и округлыми отверстиями и заклепками для крепления к корпусу. Это боковые накладки на шлем (рис. 6, 2, 3), предназначенные для парирования боковых ударов, известные в конструкции шлемов с домонгольского времени (Кирпичников, 1971. С. 25, 26, 31, 32. Рис. 9, 2).
В числе прочих предметов, связанных с воинскими занятиями, – 30 панцирных пластин, фрагмент кольчужного плетения и кольчужное кольцо, 5 наконечников стрел и ременная накладка, использовавшаяся для украшения мужских поясов (рис. 6). Предметы вооружения и воинского снаряжения, найденные в этих культурных отложениях, составляют десятую часть от всех находок с раскопа и четвертую часть вещей из яруса 4. Среди находок, отражающих престижный стиль жизни, представлены также фрагменты кашинных сосудов с черной и синей росписью из нижневолжских центров Золотой Орды и поливной керамики из Юго-Восточного Крыма. В этом же слое собраны и разнообразные бытовые и хозяйственные предметы и орудия труда, обычные для городских усадеб: 2 железных ножа, обоймица ножен и 2 оковки от ножен, шило, 4 иглы, сверло, оселок, 2 обломка жернова, деревянное трепало для льна, 2 ключа типа Г, 3 замка типов В, Д и Ж, деревянная ложка, более 30 сундучных накладок и петель.
Ниже, на отметках 630–670 см, в раскопе залегает слой влажной темно-коричневой супеси, обильно насыщенный щепой, свидетельствующей о масштабном строительстве. Мощность его составляет 20–40 см (рис. 1). Связанный с ним строительный ярус 5 включает в себя остатки жилой срубной постройки (сооружение 9), часть обгоревшего настила (?) (сооружение 3), остатки дворового настила (сооружение 18) и участок частокола (сооружение 1) (рис. 2). Все эти сооружения вошли в границы раскопа лишь частично.
От срубной постройки (сооружение 9) сохранились два венца северо-западной стены сруба, с вырубкой для горизонтальной лаги в верхнем бревне, подкладками под нижнее бревно и массивные плахи, из которых, возможно, был сложен пол. Дерево внутри постройки обуглено, вероятно, сруб был уничтожен пожаром. По спилам с плах получены две дендрохронологические даты: 1346 г. и 1352 г., однако, скорее всего, это дерево находилось во вторичном использовании.
Остатки сооружения 3 представляют собой настил из двух досок, положенных на лагу с подкладками. Дворовой настил, расчищенный в северо-восточной части раскопа (сооружение 18), ориентированный в направлении ЮЗ–СВ, был сделан из бревен, досок и плах, судя по всему, вторичного использования. Разнотипный материал использовали в качестве продольных “лаг”, на них были положены тонкие бревна. Частокольная ограда в западной части раскопа (сооружение 1) маркирует разделение верхней и нижней частей склона на две отдельные усадьбы.
Из слоя, относящегося к 5-му строительному ярусу, происходит 69 находок. Наиболее яркие предметы, необычные для материальной культуры древнерусского города, – фрагменты двух железных блях с золотой плакировкой и рельефными изображениями дракона (рис. 7, 5, 6). Стилистические особенности указывают на их связь с металлопластикой Востока. Накладки с драконами известны как украшения воинских поясов, имевших восточное происхождение (Козлова, 2004. С. 197–200). Сходные изображения драконов украшают бронзовые зеркала, находки которых представлены значительной серией на золотоордынских памятниках Среднего Поволжья (Руденко, 2022).
К числу редких артефактов следует отнести железный стержневидный стиль для письма с рельефным декором, близкий по своей форме и орнаментации к западноевропейским стилям (рис. 7, 1). Единичные находки стержневидных стилей, относящиеся к более раннему времени, происходят из Новгорода (Овчинникова, 2021. С. 206–208. Рис. 4, 12–15), в Москве это первая находка. Здесь же обнаружены две товарные пломбы с кириллическими буквенными знаками (рис. 7, 8, 9). Среди предметов, связанных с воинскими занятиями, – два наконечника стрелы, три кольчужных кольца, пластина от доспеха, железная ременная накладка с кольцом. Набор бытовых вещей и орудий труда включает в себя семь ножей, в том числе один с пластинчатой рукоятью, шило, две иглы, обломок жернова, два деревянных трепала для льна, ключ типа В, два замка – навесной и накладной, сундучную фурнитуру. Немногочисленные украшения – два щитковых перстня из цветного металла (рис. 7, 10). Восточные влияния и контакты с Золотой Ордой отражают находки фрагментов кашинных чаш с полихромной росписью и поливного кувшина (5 фрагментов).
Наиболее выразительные остатки деревянных сооружений, части сруба, частокола-ограды и дворового настила, образующие целостный комплекс, залегают в культурном слое, связанном с 6‑м строительным ярусом (рис. 1, 4). Этот слой представляет собой темно-коричневую супесь, обильно насыщенную навозом, местами со щепой, толщиной до 40 см. От сруба (сооружение 5) сохранилось по два венца с каждой стороны постройки. В раскопе полностью расчищена только северо-восточная стена дома, которая имела внутреннюю длину 448 см. Бревна (диаметр 24–25 см) сложены в обло чашей вверх. По центру бревен прорезаны продольные канавки шириной 6–7 см и глуби-ной 2, в которые уложен мох. Для предотвращения скатывания по небольшому склону нижний северо-западный венец с внутренней стороны подперли забитым в землю колом. В постройке сохранился пол, который был уложен на уровне между первым и вторым венцами. В северо-западной половине он был сделан из досок (толщина 3–5 см, ширина до 32). Они лежали на бревне (диметр 18 см) перпендикулярно северо-восточной стене сруба. В юго-восточной половине сруба пол был сложен из плах (ширина до 28 см, толщина 10), которые располагались параллельно северо-восточной стене и также опирались на лаги (диметр до 16 см). Пол и внутренняя поверхность верхних венцов сильно обгорели. По спилам бревен и досок из этой постройки получены пять дендродат: одна – 1341 г., по две – 1342 и 1343 гг., наиболее поздние – с нижнего венца и обрезка доски, оставленного во время строительства под полом дома.
В 2.5 м к северо-западу от жилого дома расчищены остатки дворового настила (сооруже-ние 14), ориентированного по оси СЗ–ЮВ, по направлению к склону. Его основу составляли два бревна по краям, из которых сохранилось только одно, северо-восточное, диаметром 27 см. В этом бревне был вырублен прямоугольный продольный паз, в который положены поперечные доски разной ширины (25–48 см) и толщины (до 6 см), а на одном участке вместо досок использовали палки и жерди. Сохранившаяся ширина настила – 3.6 м. Сооружение имеет следы ремонтов; отверстия и следы истертости на его поверхности говорят об оживленном движении по нему. В западной части раскопа зафиксирована часть частокольной ограды из жердей (сооружение 2) толщиной 10–15 см, с обугленной после сильного пожара верхней частью. Прослойка углей, маркирующая мощный пожар, перекрывает слой, относящийся к 6-му ярусу, почти на всей площади раскопа.
Из слоя 6-го яруса происходит 38 находок. Среди найденных здесь украшений и деталей костюма – два перстня из стекла (рис. 8, 12) и цветного металла, а также железная пряжка. Бытовые предметы и орудия труда представлены деревянным гребнем, железной бритвой, шестью железными ножами и рукоятью ножа, двумя свинцовыми грузиками, железным замком типа В (рис. 8, 3), железной сундучной фурнитурой, каменным оселком, фрагментом деревянного трепала и фрагментами деревянной миски. Здесь же найдены два креста-тельника: миниатюрный с синей эмалью (рис. 8, 6) и криноконечный с ромбическим средокрестием. Среди прочих находок – две товарные пломбы, одна из них с буквенными знаками. По-прежнему фиксируются обломки импортных сосудов: осколок кашинной чаши с полихромной подглазурной росписью из Золотой Орды и фрагменты красноглиняного кувшина. Треть вещей происходит из жилой постройки. Среди них – два обломка керамических плиток пола, принадлежавшие, вероятно, находившейся поблизости церкви и случайно попавшие сюда после разрушения постройки 5.
Наиболее ранние сооружения и следы усадебной застройки, составляющие 7 ярус, – деревянный настил (остатки дворового мощения?) (сооружение 19), уложенный почти перпендикулярно крутому склону, и частокол, ориентированный в направлении С–Ю (сооружение 4) (рис. 1, 4). Настил был сделан из поперечных плах (ширина 16–25 см, толщина 6–10 см) и бревен (диаметр 16–21 см) с вырубками под продольное бревно, ширина мощения – более 196 см. Для предотвращения проседания лаги во влажный грунт она была положена с опорой на вертикальный столб, с креплением его верхушки в специальной выемке, сделанной в нижней части лаги. Настил, возможно, имел еще один, полностью разобранный верхний ярус. От него остался только обломок дерева, лежавший в неглубоких выемках, вырубленных на краях наиболее крупных поперечных бревен и плах. Отсутствие следов износа может свидетельствовать о непродолжительном периоде эксплуатации данной конструкции. Усадебная ограда (сооружение 4) – плотный частокол из бревен диаметром 12–16 см – отделяла верхнюю площадку от нижней, один из ее колов датирован 1332 г. Обугленные верхушки колов свидетельствуют о гибели ограды в огне. Эти сооружения залегают в слое темно-коричневой супеси с навозом и высоким содержанием щепы.
Из этого слоя происходит 26 находок, среди которых – обычные бытовые и хозяйственные вещи и орудия труда: деревянный гребень (рис. 8, 6), 3 железных ножа и тыльник ножа, 2 железных иглы, пряслице, деревянное трепало для льна, 2 свинцовых грузика; остатки обуви (лапоть с войлочной стелькой); строительные детали (деревянный кровельный лемех, 3 керамические плитки пола); отдельные предметы, связанные с торговлей и престижным потреблением (свинцовая пломба?), фрагмент керамического сосуда из Крыма, фрагмент металлического сосуда.
Самые ранние культурные отложения, не содержавшие остатков деревянных сооружений, – слой песка с включениями угольков, серой супеси и немного щепы. Доярусный слой исследован до материка лишь на одном из участков раскопа, где его мощность составляла 45 см (рис. 1). Этот слой беден находками, их всего восемь, в том числе железные нож (рис. 8, 1), шило, две иглы, желтая шаровидная прозрачная стеклянная бусина (рис. 8, 8), деревянная клепка кадушки, фрагмент деревянного сосуда и обломки золотоордынской кашинной чаши. Профилировка керамики из этого слоя указывает на принадлежность ее ко времени не позже первой половины XIV в. Характер ранних отложений свидетельствует о том, что в начале XIV в. на данной территории могли проводиться работы по подрезке материковой поверхности для выравнивания и расширения верхней площадки, примыкающей к склону. Вероятно тогда же где-то рядом началось возведение деревянных построек, однако оно было еще не достаточно масштабным, так как объем строительного мусора в отложениях невелик.
Восстановить историю освоения верхнего участка, расположенного к западу от оград (сооружения 1, 2, 4), невозможно, так как ранние культурные горизонты были уничтожены в процессе выемки земли под здание погреба в XIX в. На этой площади удалось зафиксировать только одну постройку, частично сохранившуюся в 20 м к северу от раскопа 1. Сооружение было срубом, от которого осталась часть северо-западной стены из семи венцов диаметром до 16 см и, вероятно, представляло собой остатки погреба. Единственный обломок керамики, найденный в верхней части постройки, допускает время строительства этого сооружения не позже рубежа XV–XVI вв.
Несмотря на присутствие в коллекции монет и дендрохронологическое датирование спилов из трех сооружений, относящихся к трем различным ярусам, собранные материалы не представляют надежных оснований для узкого дарования всех выделенных в раскопе слоев и строительных ярусов. По находкам монет Василия Дмитриевича 2‑й строительный ярус должен быть датирован началом XV в., временем до денежной реформы 1413 г., когда денги дореформенной чеканки вышли из обращения. Постройки самого верхнего 1‑го яруса могут быть позднее не более чем на два-три десятилетия. Радиоуглеродная калиброванная дата зерна из 3-го яруса, установленная с вероятностью 95.4% в интервалах 1280–1313, 1360–1388 гг., в поздней своей части согласуется с археологической датировкой22. Четыре дендродаты, полученные по спилам из сооружения 5 – постройки 6-го яруса, указывают, что она была срублена около 1343 г. При датировании культурных отложений этого яруса следует учесть находку ножа с пластинчатой рукоятью, появление которых на Руси относят к середине XIV в. (Завьялов, 2020. С. 158).
Датировка нижележащих слоев 7-го яруса и доярусных отложений первой половиной XIV в. устанавливается с учетом их стратиграфического положения, общего характера вещевых материалов и спила из сооружения 4 с порубочной датой 1332 г. Порубочные даты спилов двух плах из сооружения 9 в 5-м ярусе хорошо согласуются с его общим стратиграфическим положением между отложениями 1340-х годов и первой четверти XV в. Слой 4-го яруса с остатками частокола и разобранного дворового настила, из которого происходит основная масса находок, в том числе детали доспеха и шлема, энколпион и русская пломба с надписью, не содержит хроноиндикаторов, которые могли бы сузить его датировку. Общее хронологическое положение этого яруса и относящихся к нему отложений определяется в рамках второй половины XIV в., скорее всего, в интервале 1360–1390-х годов.
Древнейшее свидетельство усадебной застройки на исследованном участке – остатки частокола первой половины XIV в. (7-й ярус), разделявшего верхнюю и нижнюю площадки. Эта граница не менялась в первой половине–середине XIV в., в период существования построек 6 и 5-го ярусов. Одна из жилых построек усадьбы в это время находилась в южной части вскрытого раскопками участка, тогда как его центральная часть была занята дворовыми настилами. В общем пространственном расположении построек этих двух ярусов прослеживается преемственность.
Очевидно, на следующем этапе (4-й строительный ярус) первоначальная планировка и усадебное деление участка были изменены. В это время, возможно, исчезает частокольная ограда, ориентированная в направлении С–Ю, ранее разделявшая верхнюю и нижнюю площадки, и появляется частокол, вытянутый в направлении СВ–ЮЗ. Однако остатки построек этого яруса, наиболее насыщенного вещевыми находками, не сохранились или оказались за пределами раскопа и о планировке усадеб ничего не известно. Пространственная организация усадеб с частокольными оградами, ориентированными в направлении СВ–ЮЗ, и постройками, расположенными по той же оси, сложившаяся во второй половине XIV в. (4-й ярус), сохранялась и в последующее время, в период бытования построек 3–1-го ярусов.
Жилые постройки в это время занимали северную и центральную части исследованного участка, при этом местоположение их менялось. Очевидно, застройка исследованного участка Подола начиная с середины XIV в. была плотной, размеры усадеб остаются неизвестны. Близкие по своим конструктивным особенностям сооружения XIV–XV вв. – остатки срубных жилых построек и дворовые настилы – ранее были исследованы на соседнем участке Подола, ниже по склону подножья Боровицкого холма, в раскопе 1 2007 г. (Дубровин, Коваль, 2014. С. 97, 98). Жилые постройки были крыты дорогим лемехом, в конструкциях кровли использовались крюки-“курицы”, одна из поздних построек имела высокое крыльцо или галерею, для входа на которую использовалась лестница. Присутствие в культурных отложениях середины XIV в. и в перемешанном слое фрагментов керамических плиток может указывать на размещение поблизости от усадеб церковной постройки.
Как уже отмечено, деревянные сооружения, принадлежащие к различным строительным ярусам, несут следы пожаров. В их числе – наиболее ранняя частокольная ограда (сооружение 4), одно из бревен которой датировано 1332 г., срубная постройка 6-го яруса, срубленная около 1343 г. (сооружение 5) и относящаяся к тому же ярусу частокольная ограда (сооружение 2), срубная постройка из 5-го яруса (сооружение 9), остатки срубов 3-го (сооружение 10) и 1-го ярусов (сооружения 16, 11). Следы наиболее сильных пожаров отмечены в культурных напластованиях 5–4-го ярусов с мощной углистой прослойкой и многочисленными предметами, поврежденными огнем, и на уровне 3-го яруса, постройки которого перекрыты прослойкой, насыщенной углем и содержащей скопление обугленного зерна.
Эти наблюдения хорошо согласуются с летописными известиями о пожарах в Москве, которые отмечены, в частности, в 1337 г. (Забелин, 1905. С. 80), 1343 г. (Полное собрание…, 1949. С. 175), 1354 г. (Полное собрание, 1949. С. 179), 1365 г. (Полное собрание…, 1949. С. 183), 1382 г. (Забелин, 1905. С. 95), 1389 г. (Полное собрание…, 1910. С. 209), 1415 г. (Полное собрание…, 2000. Стлб. 487), 1445 г. (Полное собрание…, 1949. С. 263). Судя по летописным сообщениям, все эти пожары непосредственно затронули Кремль.
Точность археологического датирования отдельных ярусов в большинстве случаев не достаточна для однозначной привязки отдельных сооружений, погибших в огне, к летописным пожарам. Весьма вероятно, что углистый слой с оплавленными и поврежденными огнем артефактами на уровне 4-го яруса связан с большим пожаром 1365 г., когда “…погоре посад весь Кремль и Заречье … никто же успе имения своего вымыкати, но все огонь поясть” (Полное собрание…, 1949. С. 183), а гибель жилой постройки 6-го яруса (сооружение 5) должна быть соотнесена с сильнейшим пожаром 1354 г., когда “…погоре город Москва и кремник весь” (Полное собрание…, 1949. С. 179). Остатки пожарища на уровне 3‑го яруса в таком случае могут быть отождествлены как следы событий 1389 г., которые начались у восточных границ крепости: “загореся в городе на Москве церковь Офанасей святый о обеде, мало Кремль не весь выгоре” (Полное собрание…, 1910. С. 209). Однако для доказательного обоснования этих связей данных недостаточно.
Набор вещевых находок из культурного слоя XIV–первой половины XV в. на участке, вскрытом в 2020 г., содержит как обычные для городского обихода бытовые и хозяйственные вещи, так и предметы, связанные с престижным стилем жизни и воинскими занятиями. Ассортимент бытовых вещей и орудий труда разнообразен, он включает в себя не только такие распространенные категории, как ножи (27 экз.), оселки (2 экз.), иглы (13 экз.), шилья (3 экз.), навесные замки (7 экз.), ключи (4 экз.), кресало (1 экз.), пряслица (3 экз.), но и более редкие предметы, связанные с хозяйственными занятиями: фрагменты жерновов (3 экз.), трепала для льна (5 экз.), фрагмент косы горбуши, фрагмент сверла. Все эти предметы представлены небольшими сериями или единичными экземплярами. В составе коллекции лишь несколько металлических украшений женского костюма, это почти исключительно перстни (5 экз.).
Предметы вооружения и воинского снаряжения, напротив, составляют многочисленную группу. Среди них присутствуют такие необычные для древнерусских городских усадеб предметы, как фрагменты шлемов и наборы пластин от доспехов. Возможно, с воинским снаряжением связаны и уникальные бляхи с изображениями драконов. Столь же выразительные для характеристики статуса и благосостояния обитателей усадеб на Подоле предметы – стили для письма, торговые пломбы, кошелек с тиснением, фрагменты восточной поливной керамики. Большинство предметов, которые можно рассматривать как маркеры высокого статуса и благосостояния, происходит из культурных напластований середины–второй половины XIV в. (5 и 4-й ярусы), однако отдельные значимые артефакты, отражающие достаток и престижное потребление, отмечены в более ранних (7-й ярус) и наиболее поздних напластованиях. Присутствие в вещевой коллекции, наряду с предметами традиционного древнерусского облика, восточных и западных вещей – существенный штрих к характеристике культуры Москвы XIV–начала XV в. Различные категории находок из раскопа 2020 г. заслуживают отдельного самостоятельного изучения.
В исследованиях по исторической топографии Московского Кремля на участке между Константино-Еленинской башней и ныне утраченной церковью Константина и Елены локализован двор Тимофея Васильевича Вельяминова, московского окольничего, входившего в ближайшее окружение великого князя Дмитрия Ивановича, упомянутого в его второй духовной грамоте 1389 г. среди бояр, присутствовавших при ее составлении (Забелин, 1905. С. 616, 617; Кучкин, 1995. С. 26; Кучкин, 1997. С. 18–20, Панова, 2013. С. 152, 153). Основание для этой локализации – старое название Константино-Еленинской башни “Тимофеевская”, употреблявшееся в грамотах XV в., и сделанная в 1843 г. находка пергаменных документов, включающая, среди прочих, тарханную грамоту князя Дмитрия Ивановича новотрожцу Микуле, написанную Тимофеем Васильевичем (Кучкин, 1995. С. 26). Основываясь на плане 1843 г., документирующим место находки медного кувшина с грамотами (Панова, 2016. С. 96. Рис. 2), можно полагать, что исследованный в 2020 г. участок удален от этой точки не более чем на 10 м. Таким образом, усадьбы середины–второй половины XIV в., вскрытые в раскопе, можно рассматривать как часть кремлевских дворовладений Тимофея Васильевича или его ближайших родственников, что в полной мере соответствует особому характеру собранных здесь артефактов.
Список литературы
Андреев С.И. Поселение Екатериновка 3: к вопросу о юго-восточной границе Рязанского княжества // Археология Подмосковья: материалы науч. семинара. Вып. 14. М.: ИА РАН, 2018. С. 209–235.
Асташова Н.И., Петрова Л.А., Сарачева Т.Г. Кресты-энколпионы из собрания Государственного исторического музея. М.: РИП-Холдинг, 2013. 320 с.
Дубровин Г.А., Коваль В.Ю. Усадебная застройка раскопа 1 в Тайницком саду Московского Кремля (предварительная публикация) // Археология Подмосковья: материалы науч. семинара. Вып. 10. М.: ИА РАН, 2014. С. 94–110.
Завьялов В.И. Исследования Житного раскопа в кремле Переяславля Рязанского (2007–2009) // Материалы по археологии Переяславля Рязанского. Вып. 2. Рязань, 2013. С. 20–69.
Завьялов В.И. Ножи, рукояти, ножны из Переяславля Рязанского (по материалам Житного раскопа) // Российская археология. 2020. № 1. С. 157–164.
Забелин И.Е. История города Москвы. Ч. 1. М., 1905. 688 с.
Карпухин А.А., Соловьева Л.Н. Некоторые результаты дендрохронологического анализа образцов древесины из раскопа 1 в Тайницком саду Московского Кремля // Аналитические исследования лаборатории естественнонаучных методов. Вып. 4. М.: ИА РАН, 2017. С. 10–16.
Кирпичников А.Н. Древнерусское оружие. Вып. 3. Доспех, комплекс боевых средств IX–XIII вв. Л.: Наука, 1971 (Археология СССР. Свод археологических источников; вып. Е1-36). 126 с.
Коваль В.Ю. Керамика из раскопок на Подоле Московского Кремля // Археология Подмосковья: материалы науч. семинара. Вып. 12. М.: ИА РАН, 2016. С. 437–475.
Козлова А.В. Украшения ремня, сбруи и сумок восточного происхождения из раскопок в Великом Новгороде // Новгород и Новгородская земля. История и археология. Вып. 18. Великий Новгород: Новгородский гос. объед. музей-заповедник, 2004. С. 188–207.
Колчин Б.А. Дендрохронология построек Неревского раскопа // Труды Новгородской археологической экспедиции. Т. 4. Жилища древнего Новгорода. М.: Наука, 1963 (Материалы и исследования по археологии СССР; № 123). 296 с.
Кучкин В.А. Автограф сподвижника Дмитрия Донского // Родина. 1995. № 2. С. 23–26.
Кучкин В.А. Забытый документ XIV в. из находки 1843 г. // Исторический архив. 1997. № 3. С. 14–20.
Макаров Н.А., Коваль В.Ю., Кренке Н.А., Панова Т.Д., Энговатова А.В. Предварительные итоги раскопок в Тайницком саду Московского Кремля // Труды II (XVIII) Всероссийского археологического съезда в Суздале. Т. II. М.: ИА РАН, 2008. С. 464–467.
Овчинникова Б.Б. Писала из раскопок в Новгорода 2000–2016 гг. // Новгородские археологические чтения – 4: материалы науч. конф. “Археология Новгорода. 85 лет исследований и открытий” (Москва, 15–16 декабря 2017 г.). Великий Новгород, 2021. С. 196–217.
Панова Т.Д. Историческая и социальная топография Московского Кремля в середине XII – первой трети XVI века. М.: Таус, 2013. 408 с.
Панова Т.Д. Раскопки в Тайницком саду Кремля и история археологического изучения территории подола Боровицкого холма Москвы в XIX–XX вв. // Краткие сообщения Института археологии. 2016. Вып. 243. С. 92–106.
Полное собрание русских летописей. Т. 20. Львовская летопись. СПб., 1910. 418 с.
Полное собрание русских летописей. Т. 25. Московский летописный свод конца XV века. М.: Изд-во АН СССР, 1949. 464 с.
Полное собрание русских летописей. Т. 15. Рогожский летописец. Тверской сборник. М.: Языки русской культуры, 2000. 216, 540 с.
Руденко К.А. Зеркала с изображением драконов и фениксов из Среднего Поволжья // Средневековые древности Приморья. Вып. 5. Владивосток, 2022. С. 311–342.
Столярова Е.К., Коваль В.Ю. Стеклянные браслеты восточной части Московского Кремля (предварительные результаты работ 2016 года) // Краткие сообщений Института археологии. 2017. Вып. 249, ч. II. С. 86–94.
Тарабардина О.А. Современные археологические исследования и проблема верификации дендрохронологической шкалы Новгорода // Ежегодник Новгородского государственного объединенного музея-заповедника. 2010. Великий Новгород, 2011. С. 53–56.
Тарабардина О.А. Ландскрона и Ниеншанц: результаты дендрохронологических исследований // Российский археологический ежегодник. № 2. СПб., 2012. С. 626–635.
Феребов А.Н. Основания датировки стеклянных браслетов, найденных на территории Московского Кремля // Археология Подмосковья: материалы науч. семинара. Вып. 14. М.: ИА РАН, 2018. С. 189–200.
Ханенко Б.И., Ханенко В.Н. Древности русские. Кресты и образки. Вып. 1. Киев: Тип. С.В. Кульженко, 1899. 33 с.
Дополнительные материалы отсутствуют.
Инструменты
Российская археология


