Известия РАН. Механика жидкости и газа, 2019, № 6, стр. 38-47
РЕЗУЛЬТАТЫ ИСПЫТАНИЙ СУДНА С РАЗЛИЧНЫМИ ВОЛНОВЫМИ ДВИЖИТЕЛЯМИ В ГИДРОКАНАЛЕ
В. В. Прокофьев a, *, А. К. Такмазьян a, Е. В. Филатов a
a МГУ им. М.В. Ломоносова, Научно-исследовательский институт механики
Москва, Россия
* E-mail: prokof@imec.msu.ru
Поступила в редакцию 19.12.2018
После доработки 20.04.2019
Принята к публикации 20.04.2019
Аннотация
Приведены результаты сравнительных исследований для пяти типов волновых движителей, включая движитель типа подводный парус, жесткий профиль с упругими связями и движитель без подвижных элементов, использующий эффект нелинейного взаимодействия волны с рабочим органом движителя. Проведено численное моделирование работы жесткого профиля с использованием пакета XFlow. Исследовано влияние на эффективность положения волнового движетеля на корпусе судна, его заглубления, параметров упругих связей, наличия стабилизирующих кормовых устройств. Показано, что для установленного на носу судна жесткого качающегося волнового движителя с упругими связями скорость движения пропорциональна размаху качки носа судна.
Волновая энергетика моря весьма велика – запасы энергии волнения мирового океана оцениваются в 2.7 млрд. кВт, что составляет около 30% потребляемой в мире энергии [1]. Первые упоминания об использовании энергии морских волн для движения судов относятся еще к XIX веку. История вопроса и обзор некоторых работ приведены в статье авторов [2]. Традиционные схемы волновых движителей (ВД) используют для создания тяги в основном качку судна, то есть для эффективной работы требуются волны определенной длины и достаточно большой высоты. На судах большой длины килевая качка отсутствует и эти схемы не работают, а для малых судов волны значительной интенсивности могут быть опасны. Препятствием к применению ВД, использующих качку судна, является нестабильность параметров реальных морских волн, а также сильная зависимость эффекта от параметров самого судна и волнового движителя. Тем не менее имеется много примеров применения ВД на судах (см. обзор в [2]).
Принцип прямоточного волнового движителя (ПВД), не имеющего подвижных элементов и никак не связанного с качкой самого судна, описан в работе [3]. В ПВД используется описанный в [4, 5] эффект нелинейного взаимодействия волн с затопленной наклонной пластиной (конструкция описана ниже в п. 1). Отметим, что в экспериментах [4] эффект движения против волн протестирован на пластине, закрепленной на тележке, свободно перемещающейся вдоль волнового канала по рельсам и не имеющей вертикального перемещения.
В работе [5] представлены результаты экспериментального и численного исследования движения под действием волн модели судна-катамарана, в средней части которого устанавливалась наклонная пластина. Большая длина корпуса обеспечивала отсутствие килевой качки судна. В отличие от пластины, жестко закрепленной на тележке, для катамарана имела место вертикальная качка, вызванная вертикальной составляющей силы, действующей со стороны волн на пластину. Возможно, именно эта качка привела к эффекту увеличения скорости длинного (6 м) катамарана по сравнению с легкой тележкой, катящейся по рельсам. В [2] приведены данные испытания ПВД, установленного в носовой части укороченного катамарана (1.7 м). Несмотря на значительное уменьшение сопротивления трения и массы судна, скорость его движения оказалась заметно меньшей, чем для 6 м – катамарана. При установке на корму катамарана дополнительной жесткой горизонтальной затопленной пластины скорость заметно увеличилась и достигла того же уровня, что и для длинного катамарана. Установка же на корме вместо горизонтальной пластины–стабилизатора второго ПВД привела к неудовлетворительному результату – в значительном диапазоне частот судно дрейфовало по волнам.
Цель представленного исследования экспериментально в условиях значительной килевой качки судна сравнить ПВД с ВД, имеющими подвижные элементы и использующими для создания тяги в основном качку судна, а также сравнить эффективности качающихся ВД различных конструкций. Испытания проводились на одной модели судна – катамарана, при одинаковых волновых режимах, с примерно одинаковой площадью рабочих частей ВД, поэтому эффективность движителей оценивалась по величине скорости судна. Особое внимание уделено исследованию наиболее распространенного качающегося ВД с использованием жесткого профиля (NACA0015) с упругими связями и ВД типа подводный парус.
1. УСЛОВИЯ ЭКСПЕРИМЕНТА
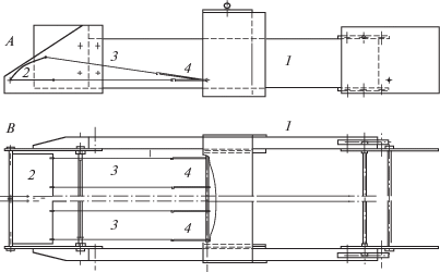
Испытания проведены на укороченной модели катамарана длиной 1.7 м (см. рис. 1). В отличие от судна длиной 6 м здесь существенна килевая качка. Показан вариант движителя типа подводный парус. Для предотвращения поперечного перетекания жидкости по краям движителя на корпусе судна установлены два вертикальных щита.
Рис. 1.
Схема судна катамарана: А, В – вид сбоку и сверху: 1 – корпус судна-катамарана (пенопласт); 2 – движитель типа подводный парус; 3 – тяги-шнуры, соединяющие заднюю кромку паруса или подвижного профиля с закрепленной на корпусе штангой; 4 – натяжное устройство – резиновые жгуты

Опыты проводились в волновом канале Института механики МГУ, ширина канала 1.5 м, длина открытого участка 60 м. Волны возбуждались вертикально качающимся клином с амплитудой качания 270 мм (максимальная), 200 мм (средняя), 150 мм (минимальная). Глубина воды в канале – 0.95 м или 0.75 м. На рис. 2 приведены данные для высоты возбуждаемых в канале волн на расстоянии 18 м от волнопродуктора (ВП) (середина базы измерения скорости судов) для глубины канала 0.95 м (кривые 1–3 – кубические аппроксимации экспериментальных точек) и для глубины 0.75 м (кривая 4). С ростом частоты высота волн растет и достигает максимума примерно при f* = 1 Гц. Исследования проводились, в основном, при меньших частотах. Отметим, что высота волн при максимальной амплитуде ВП и глубине 0.75 м близка к волнам при глубине 0.95 м со средней амплитудой качания клина ВП. На рис. 2 представлены также данные по размаху качки носа катамарана, свободно дрейфующего под действием волн в отсутствие волновых движителей (глубина 0.95 м, максимальная амплитуда ВП). Видно, что судно имеет значительную качку – в некотором диапазоне волн размах колебаний носа судна даже превосходит высоту волн, причем максимум этих колебаний достигается при частоте f = 0.8 Гц, заметно меньшей f*. Здесь и далее под высотой волн Hw понимается среднее значение разностей вертикальных координат вершин и подошв волн, а под размахом колебаний носа судна Hs среднее значение разности максимальной и минимальной вертикальной координаты носа судна за период каждого наблюдения.
Рис. 2.
Зависимости высоты волн Hw и размаха качки Hs носа судна от частоты волн f: 1, 2, 3 – максимальная, средняя и минимальная амплитуда качания клина ВП при глубине канала 0.95 м; 4 – максимальная амплитуда при глубине 0.75 м; 5 – Hs судна без ВД в условиях 1-го волнового режима

Ниже рассматриваются следующие волновые движители.
1. Прямоточный волновой движитель, в качестве которого использовалась неподвижная (относительно судна) наклонная пластина, закрепленная в носовой части катамарана. Параметры движителя – длина пластины 200 мм, наклон 20–36°, положение верхней кромки относительно невозмущенного уровня воды нулевое.
2. ВД типа гибкая пластина из оргстекла (толщина 1 мм), длина 235 мм, передний край жестко закреплен на носовой штанге катамарана (рис. 1), положение пластины в покое горизонтальное, глубина погружения 100 мм. Эксперименты проводились только при глубине канала 0.75 м [2].
3. ВД типа подводный парус. Схема установки подводного паруса на носу катамарана показана на рис. 1. Материал паруса – стандартная парусина. Длина паруса 200 или 150 мм.
4. ВД – носовая качающаяся пластина (из оргстекла) длиной 195 мм с таким же натяжным устройством, как у паруса. Осью вращения служит носовая, соединенная с корпусами судна штанга. В экспериментах менялась длина резиновых натяжных жгутов, глубина погружения. Неизменным оставалось расстояние от оси вращения пластины до штанги крепления натяжного устройства (см. рис. 1).
5. Аналогичным образом крепился к корпусу судна качающийся жесткий профиль NACA-0015. Длина хорды профиля 170 мм, материал полиуретановый компаунд АДВ-213Н с плотностью 1 г/см3. Ось вращения находилась на расстоянии 27 мм от передней кромки.
Кроме носового движителя в некоторых экспериментах использовался кормовой стабилизатор – жесткая горизонтальная пластина длиной около 200 мм, заглубленная на 100 мм.
В натяжном устройстве использовались резиновые жгуты (см. рис. 1). Длина жгутов, их количество, начальное натяжение изменялись в различных экспериментах. В качестве характеристик натяжного устройства введем два параметра – силу Т1, приложенную к ВД со стороны натяжного устройства в состоянии покоя, и коэффициент упругости K натяжного устройства. Для силы натяжения, действующей на упругий жгут, справедливо соотношение T = K(L – L0), где L – длина растянутой резины, L0 – длина без растягивающей нагрузки. Коэффициент упругости K = ES/L0, где S – суммарная площадь сечения всех жгутов, E – модуль упругости материала. Путем тарировок для эластичной резины получена величина Е $ \approx $ 1 МПа. В экспериментах измерялись сила Т1 и соответствующая длина натянутого жгута L1. Тогда для силы Т, действующей на ВД вдоль натянутых шнуров в произвольном положении, можно написать
где L, текущая длина жгута. Для жесткой пластины или профиля она зависит от угла их поворота. Параметры Т1, K и угол поворота жесткого элемента ВД определяют силовое воздействие натяжного устройства. Для паруса задача сложнее, так как его форма неизвестна.2. ПОДВОДНЫЙ ПАРУС
В [2] показано, что применение кормового стабилизатора – жесткой горизонтальной (в невозмущенном состоянии) неподвижной относительно корпуса судна пластины – значительно (до 2 раз) увеличивает скорость движения судна, если в качестве ВД используется гибкая пластина или жесткая качающаяся с упругими связями. Для ВД типа подводный парус эффект стабилизатора другой – максимальная скорость судна без него даже несколько больше, чем с его применением. Здесь максимум и вся зависимость скорости от частоты в присутствии стабилизатора значительно сдвигаются (примерно на 0.15 Гц) в сторону более длинных волн.
На рис. 3 представлены результаты исследований влияния упругих свойств натяжного устройства на эффективность работы подводного паруса. В зависимости от натяжения (данные 1–4 на рис. 3 соответствуют уменьшению натяжения паруса при его длине 200 мм, начальном заглублении 100 мм) имеется максимум эффективности при весьма малом натяжении. Параметры натяжного устройства: Т1 = 20 Н (только для данных 1) и 5 Н (2–4) с коэффициентами упругости K = 357, 207, 138, 26 Н/м соответственно. Видно, что здесь изменение натяжения паруса не только влияет на скорость движения судна, но также приводит к существенному сдвигу положения максимума скорости по частоте волн.
Рис. 3.
Влияние натяжения на эффективность работы ВД типа подводный парус длиной 200 мм при заглублении 100 мм: 1–4 – K = 357, 207, 138, 26 Н/м

Влияние глубины погружения движителя продемонстрировано на рис. 4. Здесь длина паруса 150 мм, с параметрами натяжного устройства Т1 = 13.5 Н, K = 33 Н/м. Эксперименты показали, что эффективность ВД при заглублении 200 и 300 мм (2 и 3 – заглубление составляет 1.3 и 2 длины паруса соответственно) практически одинакова. При меньшем заглублении (1 – 100 мм, 0.7 длины паруса) имеется отличие, причем на длинных волнах эффективность с погружением движителя увеличилась, а на коротких уменьшилась. Для сравнения приведены данные (4) для паруса длиной 200 мм (Т1 = 5 Н, K = 138 Н/м), при заглублении 100 мм. Отметим, что, несмотря на конечное изменение длины паруса (1 и 4 на рис. 4), отличие в скорости хода небольшое, в основном вблизи максимума.
3. ЖЕСТКИЙ ПРОФИЛЬ NACA0015
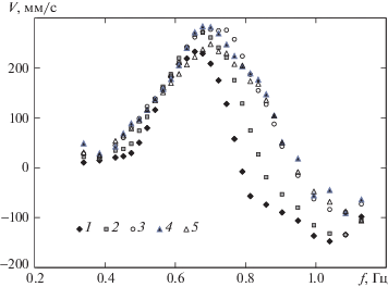
Во многих случаях в приложениях и исследованиях в качестве волновых движителей применяются жесткие поворачивающиеся профили с упругими связями. Например, в [6, 7] использовался профиль NACA0015. Ниже обсуждаются результаты экспериментов на катамаране с использованием в качестве ВД жесткого профиля NACA0015 с хордой 170 мм. Корма снабжена стабилизатором – горизонтальной жесткой пластиной длиной 160 мм с заглублением 100 мм. Результаты измерения скорости движения катамарана с таким ВД, заглубленным на 250 мм (1.47 хорды крыла) против волн представлены на рис. 5. Кривые 1–5 соответствуют увеличению жесткости натяжного устройства. В зависимости от упругости связей имеется максимум эффективности, причем, в отличие от паруса, положение его одинаково для всех натяжений (за исключением самого малого 1). Величина натяжения начинает сильно влиять на скорость движения вблизи максимума и далее в области высоких частот волн.
Рис. 5.
Скорость движения судна с ВД жестким профилем NACA0015 с хордой 170 мм в зависимости от упругости натяжного устройства: 1–5 – (Т1, K) = (3.4, 20), (6.1, 32), (10, 38), (19.2, 59), (29 Н, 79 Н/м)

На рис. 6 приведены данные по эффективности ВД с жестким профилем на двух глубинах – 100 и 250 мм (0.59 и 1.47 хорды), а также демонстрируется влияние кормовой пластины – стабилизатора. Видно, что с кормовым стабилизатором эффективность крыльевого ВД увеличивается максимум на 10% (на рис. 6 два варианта сравнения – 1 и 2 для заглубления 100 мм, Т1 = 6.4 Н, K = 33 Н/м; 3 и 4 для 250 мм, Т1 = 10 Н, K = 38 Н/м). Ранее в [2] для ВД с качающимися и гибкими пластинами, а также для прямоточного ВД, наблюдался более значительный эффект применения стабилизатора – скорость увеличивалась до 2 раз. Влияние заглубления движителя (3 и 5 для 250 и 100 мм, Т1 = 10 Н, K = 38 Н/м) в исследованном диапазоне оказалось незначительным, в основном в диапазоне коротких волн.
Рис. 6.
Влияние глубины погружения и наличия стабилизатора на эффективность работы профиля NACA0015 с упругими связями: 1 и 2 – погружение 100 мм, Т1 = 6.4 Н, K = 33 Н/м с кормовой пластиной-стабилизатором (160 мм, заглубление 100 мм) и без него соответственно; 3 и 4 – погружение 250 мм, Т1 = 10 Н, К= 38 Н/м с кормовым стабилизатором и без него соответственно; 5 – то же, что 3, но при заглублении 100 мм

Рис. 7.
Влияние высоты волн на скорость судна с профилем NACA0015, хорда 170 мм, Т1 = 10 Н, K = 38 Н/м: 1–3 – максимальная, средняя и минимальная амплитуда работы ВП

Влияние интенсивности волнения при неизменных характеристиках ВД с жестким профилем (заглубление 250 мм, Т1 = 10 Н, K= 38 Н/м) показано на рис. 7. Скорость движения судна увеличивается с ростом высоты волн во всем исследованном диапазоне частот волн. Максимальное значение скорости для волн разной интенсивности достигается при одинаковой частоте, примерно равной 0.72 Гц, соответствующей длине волн 2.9 м (длина судна 1.7 м). Введем для каждого режима работы ВП безразмерную величину ξ, пронормировав среднюю скорость движения судна V по характерной скорости π(Hwf)max, в качестве которой используется максимальная величина скорости в данном режиме по линейной теории. Зависимость ξ = V/(πHwf)max от отношения длины волны к длине катамарана приведена на рис. 8, причем условия соответствуют 1, 2, 3, рис. 7. Все точки, полученные для разной интенсивности работы ВП, близки к единой зависимости. Таким образом, в исследованном диапазоне параметров можно считать скорость судна при фиксированной частоте волн, пропорциональной высоте волн. Максимум скорости судна достигается при отношении длины волны к длине судна 1.7. На рис. 8 также приведена зависимость (4) для величины η = 10Hs f/$\sqrt {g{{L}_{s}}} $, где Hs f – характерная скорость качки носа судна; данные получены для максимальной амплитуды работы ВП. Хорошее совпадение всех четырех зависимостей на рис. 8 свидетельствует о том, что работа ВД в случае использования жесткого качающегося профиля в основном определяется качкой судна.
Рис. 8.
Безразмерная величина скорости ξ = V/(πHw f)max в зависимости от относительной длины волн λ/Ls: 1–3 соответствуют рис. 7; 4 – зависимость для η = 10Hs f/$\sqrt {g{{L}_{s}}} $; Ls – длина катамарана

4. КОЛЕБАНИЯ ЗАТОПЛЕННОГО ПРОФИЛЯ NACA-0015 ПОД ДЕЙСТВИЕМ НАБЕГАЮЩИХ ВОЛН
Приведем результаты численного эксперимента с использованием пакета XFlow. Метод частиц, используемый в его решателе, позволил эффективно смоделировать различные волновые эффекты и взаимодействие волны и профиля.
Принята двумерная модель гидроканала шириной 1 м и длиной 15 м. С одной стороны канала располагался клиновой волнопродуктор, размеры и закон движения клина волнопродуктора в точности соответствуют экспериментальным, а с другой стороны установлен волногаситель в виде длинной наклонной пластины. Глубина канала 0.95 м.
Крыльевой профиль расположен изначально горизонтально. На ось профиля действует линейный возвращающий момент M = –0.5α, где α – угол отклонения оси от горизонтали в градусах. Считалось, что вертикальная составляющая силы, действующей на судно со стороны профиля, компенсируется его плавучестью. В нашем случае эта сила пропорциональна изменению вертикальной координаты оси профиля. Если учесть площадь сечения катамарана по ватерлинии, то вес вытесненной воды на каждый метр отклонения от вертикали равен 7700 Н. Рассматривались три различных глубины погружения оси вращения профиля относительно невозмущенной поверхности воды: –0.1, –0.2 и –0.3 м.
Воздействие волн на корпус катамарана (не моделируемый непосредственно в расчетах) имитировалось внешней вертикальной нагрузкой, заданной по гармоническому закону. Частота нагрузки равна частоте набегающих волн. Отношение амплитуды внешней силы к силе плавучести задавалась параметром Kf, принимающим значения 0.003 и 0.007. Профиль изначально располагался на расстоянии 8 м справа от волнопродуктора и передвигался под действием волн в направлении слева направо, т.е. навстречу волнам. Размер расчетной ячейки составлял величину 0.01 м, при общем количестве ячеек 263 000. Амплитуда качания клина соответствовала максимальному режиму работы ВП при частоте 0.9 Гц.
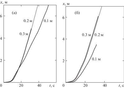
Проведены расчеты для трех глубин при различных значениях амплитуды внешней силы, имитирующей качку катамарана. Данные перемещения катамарана с волновым движителем, приведенные на рис. 9, показывают, что процесс сильно зависит от амплитуды качки. В рассматриваемом случае интенсивность движения судна увеличивается с увеличением глубины его погружения. При расстоянии до свободной поверхности 0.2 м и более, глубина не влияет на движение. Для тех же глубин и коэффициента качки Kf = 0.003 данные для горизонтальной скорости судна приведены на рис. 10; результат для глубины 0.2 м не приводится, так как практически совпадает с глубиной 0.3 м.
Рис. 9.
Горизонтальная компонента закона движения оси профиля против волн при коэффициенте амплитуды силы качки (а, б) ${{K}_{f}}$ = 0.003 и 0.007. Влияние глубины погружения волнодвижителя: сплошная линия – результаты для глубины 0.3 м, пунктирной – 0.2 м, штрихпунктирной – 0.1 м

Рис. 10.
Влияние глубины на горизонтальную скорость при коэффициенте силы Kf = 0.003. Сплошной линией показаны результаты для глубины 0.3 м, пунктирной – 0.1 м

Видно, что по величине скорости судна с ВД расчетные результаты количественно согласуются с экспериментом. Отсутствие влияния свободной поверхности на заглублениях более 0.2 м также согласуется с экспериментальными данными. Наблюдается снижение скорости при заглублении 0.1 м, аналогичный эффект отмечен в работе [6] при швартовых испытаниях судна с ВД. Из анализа представленных выше результатов ходовых испытаний судна с движителями типа качающийся профиль и подводный парус (см. рис. 4 и 6) следует, что с приближением движителя к поверхности воды эффективность может уменьшиться, а может и увеличиться в зависимости от частоты волн.
5. СРАВНЕНИЕ ЭФФЕКТИВНОСТИ ДВИЖИТЕЛЕЙ
Данные об эффективности работы ВД с гибкими пластинами получены только для глубины канала 0.75 м [2]. Так как характеристики волн при глубине 0.75 м и максимальной амплитуде работы ВП близки к волнам при глубине 0.95 м и средней амплитуде (зависимости 4 и 2 на рис. 2) возможно сравнение характеристик движителей на этих режимах, поскольку при этих условиях можно пренебречь влиянием дна канала.
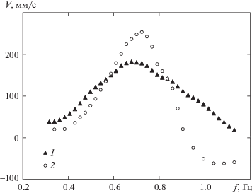
На рис. 11 представлены результаты (1) измерения скорости судна с двумя ВД типа гибкая пластина (тонкие пластины из оргстекла длиной 235 мм и толщиной 1 мм). Передние края пластин жестко закреплены на носовой и кормовой консолях катамаран, положение пластин в покое горизонтальное, глубина погружения 100 мм. Данная компоновка показала наилучшие результаты по сравнению с другими вариантами расположения гибких ВД на корпусе судна (см. [2]). Аналогичные данные (2) представлены для расположенного на носу судна ВД с жестким профилем NACA0015 (хорда 170 мм, заглубление 250 мм) с оптимальными упругими связями и с кормовым стабилизатором, полученные при глубинах канала 0.95 м и средней интенсивности работы ВП. Видно, что в области максимальных скоростей эффективность жесткого профиля почти на 30% превосходит эффективность гибкого ВД. Однако у гибкого ВД более широкий диапазон рабочих частот, он имеет преимущество при высоких частотах больше 0.85 Гц.
Рис. 11.
Зависимости средней скорости движения судна от частоты для ВД типа гибкая пластина: 1 – две симметрично расположенные гибкие пластины на носу и корме судна с заглублением 100 мм; 2 – ВД с жестким профилем NACA0015 с упругими связями (заглубление 250 мм)

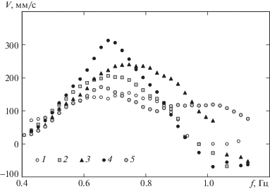
На рис. 12 проводится сравнение эффективности работы волновых движителей четырех различных конструкций, причем параметры каждой (натяжение для качающихся движителей, угол наклона и заглубление для ПВД) соответствуют наибольшей полученной в опытах эффективности. Во всех случаях использовался катамаран длиной 1.7 м с кормовым стабилизатором. Режим работы ВП – максимальный; уровень воды в канале – 0.95 м. Площади рабочих элементов ВД и пластин стабилизаторов немного отличались. Видно, что использование в качестве ВД жесткого качающегося с упругими связями профиля NACA0015 значительно (до 35%) повышает эффективность ВД по сравнению с пластиной с упругими связями (даже несмотря на несколько меньшую площадь хорды профиля). Отметим, что в работе [2] путем прямого сравнения показано, что эффективность гибких пластин близка к эффективности качающихся пластин с упругими связями. Среднее положение между пластиной и профилем занимает подводный парус. Парус отличается от жестких ВД компактностью, простотой регулировки и, кроме того, более широким диапазоном рабочих частот (3). На больших частотах парус становится эффективнее других, рассмотренных в настоящем исследовании ВД. Отметим, что эффективность работы на больших частотах можно повысить, сняв кормовой стабилизатор, так как без стабилизатора максимум эффективности паруса смещается в сторону больших частот (см. [2]). Прямоточный ВД, установленный на коротком катамаране, уступает остальным рассмотренным типам ВД (по скорости уступает в максимуме 25% ВД типа качающаяся пластина, рис. 12). Однако в отсутствие качки судна эффективность качающихся ВД резко падает, тогда как у прямоточного увеличивается. На рис. 12 для сравнения приведены данные прямоточного ВД для катамарана длиной 6 м (5), не испытывающего килевой качки. Видно, что по сравнению с остальными исследованными ВД сохраняется работоспособность ПВД в значительном диапазоне коротких волн.
Рис. 12.
Сравнение различных ВД: 1 – прямоточный, пластина 200 мм, наклон 30°, кромка 0 мм с кормовой пластиной 150 мм; 2 – пластина 195 мм, Т1 = 5 Н, K = 86 Н/м, горизонтальная пластина на корме 200 мм; 3 – парус 200 мм, 5 Н, 138 Н/м, корма 163 мм; 4 – NACA0015 170 мм, 6.4 Н, 38 Н/м, корма 160 мм; 5 – прямоточный, 200 мм, 36°, кромка 0 мм, длинный катамаран (6 м, движитель в середине судна). Заглубление всех элементов 100 мм, максимальный режим работы ВП, глубина канала 0.95 м

ЗАКЛЮЧЕНИЕ
Путем сравнительных испытаний определена эффективность работы ВД различных типов.
Показано, что использование в качестве ВД жесткого качающегося профиля с упругими связями значительно повышает (на 35%) эффективность ВД по сравнению с пластиной той же площади в плане. Среднее положение между пластиной и профилем занимает ВД типа подводный парус. Однако парус имеет более широкий диапазон рабочих частот. Применение кормового стабилизатора приводит к увеличению эффективности ВД – для подпружиненной пластины, гибкого плавника, прямоточного ВД скорость увеличивается в 1.4–2 раза, для качающегося профиля всего на 10%. Для паруса эффективность применения стабилизатора сильно зависит от частоты волн – величина максимума скорости в зависимости от частоты вообще не изменяется, но при наличии стабилизатора вся характеристика сдвигается в сторону низких частот. Прямоточный ВД, в условиях сильной килевой качки по эффективности уступает остальным рассмотренным типам ВД, но в области высоких частот, где качка судна уменьшается, видно его преимущество. Результаты, полученные для ПВД на длинном катамаране, имеющем сопротивление в 3.5 раза большее короткого, показывают, что по силе тяги ПВД сравним с качающимся профилем в области его максимальной эффективности и превосходит при увеличении частоты волн.
Показано, что скорость судна с ВД типа жесткий подпружиненный профиль пропорциональна произведению размаха качки на частоту, при заданной частоте скорость пропорциональна высоте волн. В отличие от ПВД, для качающихся ВД, влияние на эффективность глубины их погружения быстро уменьшается.
Работа была выполнена при поддержке гранта РФФИ № 16-08-00807.
Список литературы
Барабанщиков Д.А., Сердюкова А.Ф. Электроэнергетика океана // Молодой ученый. 2016. № 11. С. 1825–1828.
Прокофьев В.В., Филатов Е.В., Такмазьян А.К., Якимов А.Ю. Сравнительные исследования эффективности судовых волновых движителей различных типов // Инж. журн.: наука и инновации. 2018. № 3. С. 1–17.
Якимов Ю.Л., Якимов А.Ю. Прямоточный волновой движитель судна // Вестн. МГУ. Сер. 1. мат., мех. 2005. № 4. С. 59–62.
Очеретяный С.А., Прокофьев В.В., Такмазьян А.К., Филатов Е.В. Воздействие волн на погруженную в жидкость подвижную пластину: физический и численный эксперимент // Изв. РАН. МЖГ. 2013. № 4. С. 27–34.
Прокофьев В.В., Такмазьян А.К., Филатов Е.В. Испытание и расчет движения модели судна c прямоточным волновым движителем // Изв. РАН. МЖГ. 2017. № 4. С. 24–38.
Глушко В.Н. Исследование влияния параметров морского волнения на величину тяги, создаваемой волновым движителем в виде колеблющегося крыла с упругой заделкой // Прикл. гидромеханика. 2009. Т. 11. С. 47–53.
Гринченко В.Т., Глушко В.Н., Каян В.П. Использование энергии морского волнения волновым движителем в виде колеблющегося крыла для движения судна // Инст. гидромеханики НАНУ. Киев. 2018. http://er.nau.edu.ua:8080/handle/NAU/34189
Дополнительные материалы отсутствуют.
Инструменты
Известия РАН. Механика жидкости и газа



