РАДИОХИМИЯ, 2022, том 64, № 2, с. 150-157
УДК 541.15:621.039.5
ФИЗИКО-ХИМИЧЕСКИЕ ФОРМЫ ИОДА В
ТЕПЛОНОСИТЕЛЕ ПЕРВОГО КОНТУРА ЯЭУ С
АММИАЧНЫМ ВОДНО-ХИМИЧЕСКИМ РЕЖИМОМ
© 2022 г. Л. Н. Москвина, В. Н. Епимаховб,*, С. Н. Орловб,
С. Г. Мысикб, Р. В. Фоменковб, Д. С. Подшибякинб
а Санкт-Петербургский государственный университет,
199034, Санкт-Петербург, Университетская наб., д. 7-9
б Научно-исследовательский технологический институт им. А.П. Александрова,
188540, Сосновый Бор Ленинградской обл.
*e-mail: evn@niti.ru
Поступила в редакцию 04.03.2021, после доработки 13.04.2021, принята к публикации 20.04.2021
Статья посвящена определению физико-химических форм радионуклидов иода в теплоносителе первого
контура транспортных ядерных энергетических установок (ТЯЭУ) водо-водяного типа с аммиачным
водно-химическим режимом. Основной формой существования радионуклидов иода 131I-135I в
теплоносителе является иодидная форма. Содержание иодат-ионов составляет 1-2% при концентрации
аммиака от 18 до 79 мг/кг. Доля летучих органических и неорганических форм радионуклидов иода,
переходящих в газовую фазу из теплоносителя, не превышает 3.3 × 10-2 и 2.5 × 10-4 % соответственно.
Ключевые слова: водо-водяной реактор, теплоноситель первого контура, физико-химические формы
радионуклидов иода, летучие, органические, неорганические, иодат, иодид, коэффициент очистки
теплоносителя.
DOI: 10.31857/S0033831122020058, EDN: FOGWTG
ВВЕДЕНИЕ
держания водно-химического режима теплоносите-
ля первого контура.
Радионуклиды иода являются одними из важ-
На распределение физико-химических форм ра-
нейших продуктов деления, во многом определя-
дионуклидов иода в теплоносителе первого контура
ющими радиационную опасность ЯЭУ в условиях
влияют [5, 6]: водородный показатель и окислитель-
аварийных ситуаций, связанных с потерей тепло-
но-восстановительный потенциал среды; концен-
носителя. Повышенная опасность радионуклидов
трация в теплоносителе примесей; радиационное
иода объясняется их значительным радиобиоло-
поле (мощность работы) реактора.
гическим воздействием на человеческий организм
Необходимо отметить, что большинство суще-
[1-3] и летучестью ряда физико-химических форм
ствующих исследовательских работ по химии иода
иода, в первую очередь органических (метилиодид-
в основном контуре ядерно-энергетических уста-
ной CH3I и других) [4].
новок относятся к кислотному либо нейтральному
При решении проблемы локализации аварийных
значению водородного показателя среды [7-10].
выбросов радиоиода необходимо учитывать разную
В данной работе изучено распределение физи-
эффективность улавливания отдельных физико-хи-
ко-химических форм радионуклидов иода в тепло-
мических форм его существования, что и определя-
носителе в условиях аммиачного водно-химическо-
ет необходимость получения априорной информа-
го режима (щелочная среда). Исследована зависи-
ции по их распределению в теплоносителе.
мость форм радионуклидов иода как от режимов
Помимо этого изменение доли окисленных форм
работы ЯЭУ, так и от содержания примесей тепло-
иода косвенно характеризует эффективность под- носителя.
150
ФИЗИКО-ХИМИЧЕСКИЕ ФОРМЫ ИОДА В ТЕПЛОНОСИТЕЛЕ ПЕРВОГО КОНТУР
А ЯЭУ
151
ЭКСПЕРИМЕНТАЛЬНАЯ ЧАСТЬ
Выделение иодат-ионов из водных проб те-
плоносителя. Разделение физико-химических
форм радионуклидов иода, содержащихся в про-
Изучение физико-химических форм радиону-
бах теплоносителя первого контура, проводили
клидов иода в теплоносителе первых контуров про-
методом фронтальной хроматографии с использо-
водили с применением специально разработанных
ванием неорганического ионообменника - оксида
методик. В период исследований ТЯЭУ работала
висмута(III), нанесенного на гранулированный по-
на различных уровнях мощности и режимах рабо-
литетрафторэтилен с размером гранул 0.16-0.25 мм
ты ионообменных фильтров смешанного действия
[13]. Для хроматографического разделения проб
(ФСД), рН теплоносителя поддерживали в пределах
теплоносителя использовали стеклянную колонку
нормируемых значений
9.5-10.5. Эксперименты
с внутренним диаметром 8 мм, которую заполняли
проводили при концентрации аммиака в пробах от
ацетоном и вносили в колонку оксид висмута(III)
36 до 79 г/кг, на уровнях мощности 10, 30 и 60% от
на политетрафторэтилене с таким расчетом, что-
номинальной (P, %Pн), а также на остановленном
бы высота слоя сорбента составляла около 100 мм.
реакторе. Удельная активность радионуклидов иода
Далее сливали из колонки ацетон, не допуская по-
находилась в диапазоне от 1 × 102 до 1 × 106 Бк/дм3
падания воздуха в слой сорбента, и промывали ко-
при времени работы реактора на заданном уровне
лонку 500 см3 дистиллированной воды с расходом
мощности от 2 до 210 ч и до момента отбора пробы
5-10 см3/мин. После данной пробоподготовки через
от 1.1 до 50 ч.
колонку пропускали пробу теплоносителя, подкис-
Отбор водных проб теплоносителя, выде-
ленную до рН 3 0.1 М соляной кислотой, при этом
ление всех форм радионуклидов иода и гам-
на колонке происходило выделение радионуклидов
ма-спектрометрический анализ. Пробы тепло-
иода, находившихся в теплоносителе в форме ио-
носителя первых контуров отбирали после их
дат-ионов. Данную колонку после окончания раз-
деления передавали на гамма-спектрометрический
проливки для стабилизации состава пробы. Гамма-
анализ.
спектрометрические и радиометрические измере-
ния отобранных проб теплоносителя первого кон-
Определение доли иодид-ионов. Объемную ак-
тура выполняли с использованием полупроводни-
тивность радионуклидов иода в форме иодиов вы-
кового спектрометра гамма-излучения Гамма-1П и
числяли на основании гамма-спектрометрических
бета-радиометра РКС-02. Погрешность определе-
измерений по формуле
ния не превышала 10%.
Аиодид = ∑АI - ∑Аиодат,
Для определения суммарной объемной актив-
где Аиодид - объемная активность радионуклидов
ности изотопов иода (∑АI) без учета их форм су-
иода в пробе в форме иодид-ионов, Бк/л; ∑АI - сум-
ществования использовали две методики. Первой
марная объемная активность радионуклидов иода
методикой является экспрессный хроматографиче-
в пробе, Бк/л; ∑Аиодат - суммарная объемная актив-
ский радиохимический метод анализа с использова-
ность радионуклидов иода в пробе в форме иодатов,
нием блочных сорбентов [11]. На блочном сорбен-
Бк/л.
те, импрегнированном триоктиламином, выделяли
Выделение газообразных форм радиону-
радионуклиды, присутствующие в теплоносителе в
клидов иода и определение содержание газов.
анионной форме (131-135I, 51Cr, 99Mo и 187W). Вторая
Выделение газовых проб (проб газов, растворенных
методика определения иода основана на переводе
в теплоносителе) проводили из отобранных проб
всех химических форм иода, находящихся в пробе
теплоносителя путем разделения жидкой и газовой
теплоносителя, в форму иодид-ионов с последую-
фаз, образующихся в условиях, близких к равновес-
щим их селективным извлечением на ацетилцел-
ным, при снижении давления и температуры тепло-
люлозной микропористой мембране, импрегниро-
носителя. Остаточное содержание газа в пробе те-
ванной серебром [12]. В качестве подкисляющего
плоносителя после ее дегазации (при величине га-
и одновременно восстанавливающего реагента ис-
зосодержания не менее 1 нл/кг) не превышало 3% от
пользуется аскорбиновая кислота.
его исходного количества. Общее газосодержание в
РАДИОХИМИЯ том 64 № 2 2022
152
МОСКВИН и др.
Рис. 1. Схема отбора газовой фазы теплоносителя. 1 - микрокомпрессор; 2, 3, 9 - вентили; 4 - сорбционная колонка; 5, 6,
7 - патрубки; 8 - штуцер; 10 - пробоотборная емкость.
пробе теплоносителя определяли объемно-маноме-
открытым вентилем 3 пробоотборной емкости 10.
трическим методом. Определение проводили в две
В течение отбора пробы теплоносителя вентиль 2
стадии: сначала измеряли общее содержание газов
держали закрытым. Проба теплоносителя объе-
объемно-манометрическим методом, затем отбира-
ом 1-3 л поступала в стеклянную пробоотборную
ли пробу газа и в ней измеряли содержание газовых
емкость через патрубок 7. Отобранный объем те-
компонентов газохроматографическим методом.
плоносителя определяли визуально по меткам, на-
Относительная погрешность измерения содержа-
несенным на пробоотборную емкость. В процессе
ния растворенных газов в диапазоне концентра-
пробоотбора происходила дегазация пробы и выде-
ций от 300 до 3000 млн.у./кг не превышала 15 отн%.
ляющийся газ через патрубок 6 попадал в сорбци-
Основными газообразными компонентами в тепло-
онную колонку (рис. 2), где происходило раздель-
носителе I контура являлись: азот, водород и пре-
ное выделение физико-химических форм радиону-
дельные углеводороды - метан, этан, пропан, изо-
клидов иода. Аэрозольную составляющую выделя-
бутан и нормальный бутан. Содержание кислорода
ли на аналитическом фильтре типа АФА-РСП (поз.
в отбираемых пробах газа за все время испытаний
3), элементарный иод и иодоводород выделяли на
не превышало предела определения 0.01 об%, со-
специфическом сорбенте (металлический висмут,
держание оксидов углерода находилось на уровне
поз. 5), иодорганические соединения выделяли на
0.01 об%.
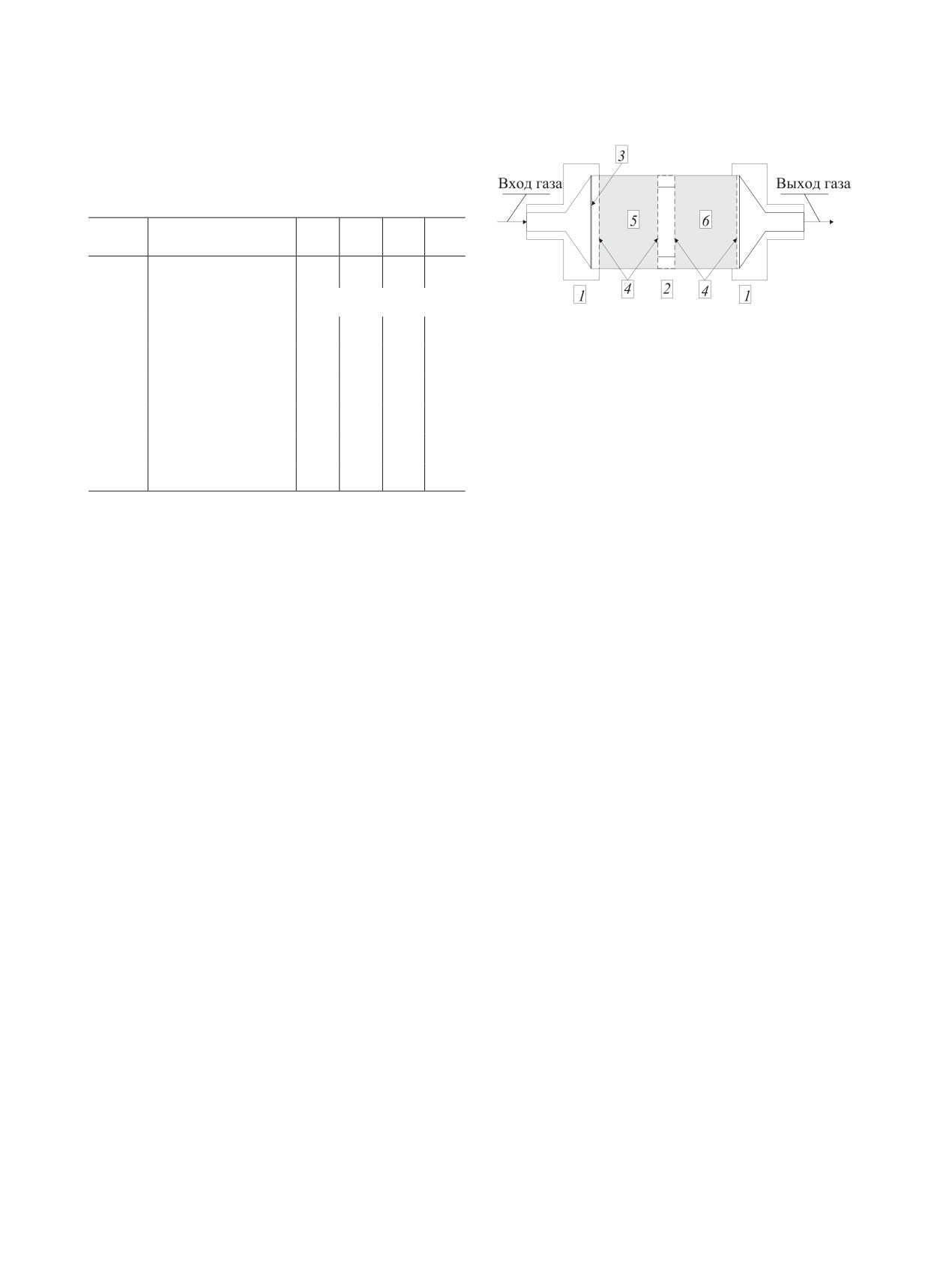
сорбенте марки Силоксид (поз. 6) [6-8].
Для отбора пробы газа из теплоносителя исполь-
зовали пробоотборное устройство, схема которого
Эффективность сорбции элементарного иода и
приведена на рис. 1.
иодоводорода при времени контакта 0.3 с при раз-
мере гранул 0.5 мм превышает 99.9%, эффектив-
Пробоотбор производили следующим образом.
К пробоотборной линии подсоединяли штуцер 8 и с
ность сорбции иодистого метила при времени кон-
помощью вентиля 9 пробоотборной линии устанав-
такта 0.3 с и размере гранул 2 мм больше 99.0%.
ливали расход теплоносителя 0.5-1 дм3/мин. Расход
На Силоксиде коэффициент селективности сорб-
теплоносителя определяли по времени наполнения
ции иода и 133Хе значительно больше 105. Сорбент
емкости определенного объема. Далее к штуцеру
функционирует при относительной влажности газа
подсоединяли резиновый шланг, соединенный с
до 100% и при температуре до 200°С.
РАДИОХИМИЯ том 64 № 2 2022
ФИЗИКО-ХИМИЧЕСКИЕ ФОРМЫ ИОДА В ТЕПЛОНОСИТЕЛЕ ПЕРВОГО КОНТУР
А ЯЭУ
153
Таблица 1. Доля радионуклидов иода (относительная
для каждого радионуклида) в форме иодат-ионов (%) в
пробах теплоносителя в зависимости от мощности рабо-
ты реактора и концентрации аммиака.
Концентрация
P, %Pн
131I
132I
133I
135I
аммиака, мг/кг
10
49
1.2
-
0.8
0.1
11
79
<0.1
Рис. 2. Схема сорбционной колонки. 1 - крышки, 2 -
17
48
0.9
0.1
0.4
<0.1
корпус, 3 - аэрозольный фильтр АФА-РСП, 4 - сетки,
5 - сорбент для улавливания элементарного иода, 6 -
30
36
-
0.8
0.3
0.5
сорбент Силоксид.
30
49
0.2
0.2
0.5
0.3
всех проб приведены концентрации аммиака и уро-
30
56
1.2
0.6
0.2
0.2
вень мощности реактора на момент отбора пробы.
60
39
1.4
0.1
0.4
0.2
Из данных, представленных в табл. 1, видно, что
60
45
1.2
0.1
0.9
<0.1
изучен достаточно широкий диапазон концентраций
аммиака: 36-79 мг/кг (допустимое значение параме-
Определение содержания общего органиче-
тра согласно норам ВХР составляет 10-100 мг/кг).
ского и неорганического углерода в пробе тепло-
Рассмотренный диапазон концентраций аммиака
носителя проводили с использованием анализатора
отвечает разбросу значений pH (25°С) 9.9-10.4 (до-
общего углерода Shimadzu TOC-Vwp методом мо-
пустимое значение параметра согласно норам ВХР
крого окисления персульфатом в условиях УФ об-
9.00-10.5). Также рассмотрен широкий набор зна-
лучения с предварительным удалением неорганиче-
чений уровня мощности реактора - максимальное
ских форм углерода путем продувки пробы азотом
и минимальное значения различаются в 6 раз (от
особой чистоты после предварительного подкисле-
10 до 60% от номинального уровня мощности).
ния фосфорной кислотой. Условия анализа: объем
При этом во всех рассмотренных случаях доля
анализируемой пробы 3 см3, вносимое количество
иодат-ионов в суммарном содержании всех физи-
H3PO4 5% от объема пробы, время продувки 3 мин,
ко-химических форм каждого радионуклида иода
объем раствора персульфата 0.5 см3, время окисле-
при работе реактора на стационарном уровне мощ-
ния и регистрации пика углекислого газа 5 мин.
ности не превышает 1.4%. В целом разброс значе-
Определение ацетат-ионов проводили с ис-
ний относительного содержания иодат-ионов в те-
пользованием ионного хроматографа «Стайер-А» в
плоносителе, по-видимому, отвечает погрешности
соответствии с аттестованной методикой измерений
определения параметра.
массовой концентрации фторидов, ацетатов, хло-
Химический процесс, приводящий к формирова-
ридов, нитритов, нитратов, сульфатов и оксалатов
нию иодат-ионов в условиях щелочного ВХР, мож-
при соблюдении следующих условий элюирования:
но писать следующим набором реакций:
колонка Transginomic AN-2 (250 × 4.6 мм), элюент
I2 + 2OH- → I- + OI- + H2O
(1)
15 мМ раствор NaOH, расход элюента 1.2 см3/мин,
I- + H2O2 → IO- + H2O,
(2)
температура термостата ячейки кондуктометриче-
ского детектора 30°С.
I- + 2OH˙ → HIO + OH- → IO- + H2O,
(3)
3IO- → 2I- + IO3
-,
(4)
РЕЗУЛЬТАТЫ И ИХ ОБСУЖДЕНИЕ
IO- + nOH˙ → IO3-
(5)
Оценка доли иодат-ионов в теплоносителе.
При этом, согласно работе [14], определяющее
В табл. 1 представлены значения доли иодат-ионов
значение для образования иодат-иона имеет реак-
в суммарном содержании физико-химических форм
ция (4). Таким образом, минимальное содержание
радионуклидов иода в пробе. Также в табл.1 для
окисленных форм иода при всех рассмотренных
РАДИОХИМИЯ том 64 № 2 2022
154
МОСКВИН и др.
уровнях содержания аммиака в теплоносителе и
Таблица 2. Зависимость содержания радионуклида в
при всех режимах работы ЯЭУ на стационарных
виде иодат-ионов относительно суммарного содержания
радионуклида в теплоносителе от мощности работы
уровнях мощности свидетельствует о практиче-
реактора
ски полном отсутствии в теплоносителе соедине-
Доля иодат-ионов
ний-окислителей (в частности пероксида водорода)
относительно
и об эффективном подавлении процесса радиолиза
количества
№
теплоносителя, т.е. о стабильности поддержания
Р, %Рн
радионуклида в
пробы
восстановительного водно-химического режима
теплоносителе, %
первого контура.
131I
133I
135I
Определение доли иодат-ионов при снижении
1
30
1.2
1.4
1.8
мощности реактора и при останове. Исследования
2
10
1.2
0.8
1.1
трансформации форм радионуклидов иода в тепло-
3
МКУ
7.1
3.6
3.3
носителе при переходных режимах работы реактор-
4
0 (27 ч после останова)
13.4
21.2
-
ной установки, включая останов, были проведены
5
0 (70 ч после останова)
24.7
-
-
при маневрах мощности реактора 30%, 10%, МКУ
(минимально контролируемый уровень мощности)
и 0%. В табл. 2 приведены данные по изменению
приводящее к росту окисленных форм (вероятно,
относительного содержания иодат-ионов в тепло-
как следствие роста содержания в теплоносителе
носителе, рассчитанные по сравнительно долгожи-
пероксида водорода исходя из реакций (1)-(5)).
вущим радионуклидам 131I, 133I и 135I.
Анализ химического состава газов в первом
Из данных, представленных в табл. 2, видно, что
контуре. За все время испытаний газовый режим
содержание иодат-ионов в теплоносителе при пере-
ЯЭУ оставался стабильным, содержание кислоро-
ходе реактора с мощности 30% на мощность 10% не
да в теплоносителе и в газе компенсатора объема
изменяется. При уменьшении мощности реактора с
находилось на минимальном уровне. На стационар-
10% до МКУ доля иодат-ионов заметно возраста-
ный уровень установка выходила через 60-70 сут с
ет. После останова тенденция к увеличению отно-
начала работы на энергетических уровнях мощно-
сительного содержания иодат-ионов сохраняется и
сти. Концентрации газов, растворенных в теплоно-
достигает 24.7% по нуклидам 131I и 133I.
сителе, находились в следующих диапазонах: гелий
от 0.01 до 0.28, водород от 28.7 до 155, кислород
Аналогичный рост доли иодат-ионов в сумме
всех физико-химических форм при останове наблю-
от 0.01 до 0.19, азот от 72 до 1770, углекислый газ
от 0.0006 до 0.003, метан от 0.001 до 1.66 млн.у./кг.
дается на реакторах типа PWR с борно-литиевым
Кроме метана при испытаниях определяли и другие
водно-химическим режимом первого контура. В ра-
углеводороды. В табл. 3 приведены минимальные и
боте [15] представлен обзор экспериментальных
максимальные относительные доли метана, этана,
результатов, свидетельствующих о росте содержа-
ния иодат-ионов при останове реактора типа PWR.
пропана и бутанов во всех циклах.
Авторы работы [15] объясняют эффект роста доли
Из табл. 3 видно, что соотношение предельных
иодат-ионов при останове влиянием температуры
углеводородов практически не менялось во всех
на окислительно-восстановительный потенциал
циклах испытаний. При работе реактора происхо-
теплоносителя. По аналогии можно предположить,
дит термолиз и радиолиз органических примесей в
что и на ТЯЭУ при останове происходит некоторое
теплоносителе I контура с образованием предель-
снижение восстановительного потенциала среды,
ных газообразных углеводородов от метана до бута-
Таблица 3. Относительные доли предельных углеводородов, продуктов разложения органических примесей
Относительная доля, %
Значения
Метан
Этан
Пропан
Изобутан
н-Бутан
Минимальные
92.90 ± 0.13
4.90 ± 0.12
1.14 ± 0.08
0.49 ± 0.05
0.09 ± 0.02
Максимальные
94.05 ± 0.35
4.20 ± 0.38
1.54 ± 0.02
0.56 ± 0.18
0.15 ± 0.01
РАДИОХИМИЯ том 64 № 2 2022
ФИЗИКО-ХИМИЧЕСКИЕ ФОРМЫ ИОДА В ТЕПЛОНОСИТЕЛЕ ПЕРВОГО КОНТУР
А ЯЭУ
155
Таблица 4. Максимальная доля (%) летучих органических и неорганических форм иода, перешедших из теплоноси-
теля в газовую фазу при дегазации пробы
Физико-химические формы
131I
132I
133I
134I
135I
Органические
3.3 × 10-2
1.3 × 10-3
1.4 × 10-2
1.9 × 10-2
3.0 × 10-2
Неорганические
2.1 × 10-2
1.6 × 10-3
2.4 × 10-2
1.1 × 10-2
2.7 × 10-2
на. Основным компонентом является метан, отно-
формы иода - иодоводород и молекулярный иод.
сительная доля которого составляет около 93-94%,
Однако щелочная среда, отвечающая аммиачно-
доля этана - 4.2-4.9%. Также замечено, что при
му ВХР, ограничивает образование молекулярного
остановке реактора содержание предельных угле-
иода. В статье [14] показано, что выход реакции об-
водородов в теплоносителе I контура снижается
разования молекулярного иода при переходе к pH 9
практически до нуля из-за пиролиза углеводородов.
падает практически до нуля. Кроме того, в щелоч-
ных условиях образующийся молекулярный иод ак-
Таким образом, в опытах по исследованию рас-
тивно гидролизуется по реакции
пределения физико-химических форм радиону-
клидов иода в теплоносителе и его зависимости от
I2 + 2OH- → I- + OI- + H2O
(6)
содержания примесей (в первую очередь органи-
Приведенный факт подтверждается данными
ческих) состав данных примесей в теплоносителе
статьи [16], в которой показано, что в щелочных
был достаточно постоянным. Содержание летучих
условиях (pH ≈ 9) летучие формы радионуклидов
органических соединений в теплоносителе не пре-
иода, образовавшиеся в основном контуре реактора,
вышало 7 × 10-5 моль/кг (1.66 млн.у./кг) и в основном
полностью разлагаются. Летучесть иодоводорода в
было обусловлено присутствием в контуре метана.
условиях щелочного ВХР также будет находиться
Таким образом, можно ожидать, что содержание
на низком уровне.
летучих органических форм радионуклидов иода в
Аналогично, в условиях щелочной среды, отве-
теплоносителе первого контура ТЯЭУ также крайне
чающей аммиачному ВХР, метилиодид (основная
низкое.
органическая форма существования иода) быстро
Определение летучих форм радионуклидов
гидролизуется по реакции [14]
иода в газовой фазе теплоносителя. В табл. 4
CH3I + OH- → CH3OH + I-.
(7)
представлены обобщенные значения доли летучих
органических и неорганических форм иода, пере-
Как было отмечено в предыдущем разделе ста-
шедших из теплоносителя в газовую фазу при де-
тьи, низкое содержание летучих органических
газации пробы.
форм радионуклидов иода в теплоносителе первого
контура обусловлено низким содержанием в первом
Из данных табл. 4 видно, что максимальная доля
контуре самих летучих органических соединений.
органических форм изотопов 131-135I в газовой фазе
крайне мала и не превышает 3.3 × 10-2%, находясь в
В табл. 5 представлены предельные значения
диапазоне 1.3 × 10-3-3.3 × 10-2%. Доля неорганиче-
относительного содержания летучих органических
ских форм радионуклидов иода 131-135I охватывает
и неорганических форм иода в теплоносителе, пе-
диапазон от 1.6 × 10-3 до 2.7 × 10-2%. Таким обра-
реходящих в газовую фазу при дегазации пробы,
зом, доля летучих органических и неорганических
а также содержание в теплоносителе метана, аце-
форм радионуклидов иода, переходящих в газовую
тат-иона и общего органического углерода.
фазу при дегазации пробы теплоносителя, от сум-
Примечание: с(CH4) - концентрация метана в
марной активности всех физико-химических форм
теплоносителе; с(CH3COO-) - концентрация аце-
радионуклидов иода не превышает 3.3 × 10-2 и
тат-ионов в теплоносителе; с(ООУ) - концентрация
2.4 × 10-2 % соответственно.
общего органического углерода в теплоносителе;
Столь низкое содержание летучих форм иода
δ - максимальное относительное содержание ле-
объясняется аммиачным водно-химическим ре-
тучих органических и неорганических форм иода
жимом теплоносителя. Летучие неорганические
в теплоносителе, переходящих в газовую фазу при
РАДИОХИМИЯ том 64 № 2 2022
156
МОСКВИН и др.
Таблица 5. Содержание органических соединений и
дегазации пробы; прочерк означает, что измерения
летучих форм иода в теплоносителе первого контура
данного показателя не производилось.
Из табл. 5 видно, что однозначной корреляции
№
с(CH4),
с(CH3COO-),
с(ООУ),
δ, %
пробы
млн.у./кг
мкг/дм3
мкг/дм3
между максимальным относительным содержани-
ем летучих форм иода, переходящих в газовую фазу
1
-
20
90
-
при дегазации пробы, и содержанием в теплоноси-
2
-
41
128
-
теле общего органического углерода и ацетат-иона
3
1.02
26
153
0.030
не наблюдается. В то же время при изменении со-
4
-
28
153
-
держания метана в пределах от 0.25 до 0.50 млн.у./кг
5
-
31
113
-
максимальное относительное содержание летучих
органических и неорганических форм иода в тепло-
6
0.50
26
100
0.003
носителе, переходящих в газовую фазу при дегаза-
7
0.25
14
131
0.002
ции пробы, сохранялось примерно на одном уров-
8
0.56
24
146
0.001
не 0.002-0.003 %, а при возрастании концентрации
9
0.48
-
-
0.001
метана до 1.02 млн.у./кг увеличивалось в 10 раз до
0.03%. Таким образом, можно предположить, что
при более высоком содержании летучих органиче-
водно-химического режима теплоносителя первого
ских примесей в теплоносителе (низком качестве
контура.
поддержания водно-химического режима) содер-
Рост доли иодат-ионов в суммарном содержании
жание летучих форм иода в первом контуре может
всех физико-химических форм радионуклидов иода
возрастать.
в теплоносителе при останове реактора, по-видимо-
му, связан с изменением окислительно-восстанови-
ЗАКЛЮЧЕНИЕ
тельного потенциала среды в результате процессов,
протекающих при выводе установки с мощности.
Преобладающей химической формой иода в те-
Аналогичная ситуация наблюдается и в первом кон-
плоносителе первого контура при работе реактора
туре реакторов типа PWR с борно-литиевым ВХР
с аммиачным водно-химическим режимом на мощ-
при их останове.
ности является нелетучая иодидная форма (98%
и более). Доля летучих органических и неоргани-
БЛАГОДАРНОСТИ
ческих форм радионуклидов иода, переходящих в
газовую фазу при дегазации проб теплоносителя
Авторы выражают благодарность к.х.н.
ТЯЭУ, не превышает 3.3 × 10-2 и 2.4 × 10-2% от
Ю.В. Цапко и к.х.н. А.И. Горшкову. Особый вклад
общего содержания иода соответственно. Низкое
в получение результатов и анализ работы внес ско-
содержание летучих форм иода объясняется амми-
ропостижно скончавшийся к.т.н. В.В. Четвериков
ачным водно-химическим режимом теплоносителя
(1953-2018).
и является его важным достоинством, обеспечива-
ющим радиационную безопасность при эксплуата-
ФОНДОВАЯ ПОДДЕРЖКА
ции ТЯЭУ.
При всех уровнях содержания аммиака в тепло-
Работа выполнена в инициативном порядке на
носителе и всех рассмотренных режимах работы
собственные средства Научно-исследовательского
ЯЭУ на мощности в контуре содержание окислен-
технологического института им. А.П. Александрова.
ных форм иода находится на крайне низком уров-
не - доля иодат-ионов в суммарном содержании
КОНФЛИКТ ИНТЕРЕСОВ
всех физико-химических форм радионуклидов иода
не превышает 1.4%. Данный факт свидетельствует
Авторы заявляют об отсутствии конфликта ин-
о стабильности поддержания восстановительного
тересов.
РАДИОХИМИЯ том 64 № 2 2022
ФИЗИКО-ХИМИЧЕСКИЕ ФОРМЫ ИОДА В ТЕПЛОНОСИТЕЛЕ ПЕРВОГО КОНТУР
А ЯЭУ
157
СПИСОК ЛИТЕРАТУРЫ
8.
Xerri B., Canneaux S., Louis F., Trincal J., Cousin F.,
Badawi M., Cantrel L. // Comput. Theor. Chem. 2012.
Vol. 990. P. 194-208.
1.
Weterings P.J.J.M., Loftus C., Lewandowski T.A. //
9.
Cantrel L., Louis F., Cousin F. // Ann. Nucl. Energy.
Toxicol. Lett. 2016. Vol. 257. P. 38-43.
2013. Vol. 61. P. 170-178.
2.
Sawka A.M., Brierley J.D., Tsang R.W., Thabane L.,
10. Girault N., Fiche C., Bujan A., Dienstbier J.// J. Nucl.
Rotstein L., Gafni A., Straus S., Goldstein D.P. //
Eng. Des. 2009. Vol. 239. P. 1162-1170.
Endocrinol. Metab. Clin. N. Am. 2008. Vol. 37. P. 457-
11. Москвин Л.Н., Мельников В.А., Четвериков В.В.,
480.
Глушков С.В. // Радиохимия. 1986. Т. 28, № 2. С. 208-
3.
Park H.S., Roman S.A., Sosa J.A. // Cancer. 2010. P. 20-
212.
30.
12. Епимахов В.Н., Мысик С.Г., Четвериков В.В. Патент
РФ № 2225648. 2003 // Б.И. № 7.
4.
Girault N., Payot F. // Ann. Nucl. Energy. 2013. Vol. 61.
P. 143-156.
13. Мельников В.А., Москвин Л.Н., Четвериков В.В. //
Радиохимия. 1983. Т. 25, № 5. С. 675-679.
5.
Lin C-C., Chao J-H. // J. Nucl. Sci. Technol. 2009.
14. Lin C-C. // J. Inorg. Nucl. Chem. 1981. Vol. 43. P. 1101-
Vol. 46. P. 1023-1031.
1107.
6.
Wren J.C. // The First European Review. Meet. on Severe
15. Tigeras A., Bachet M., Catalette H., Simoni E. // Prog.
Accident Research. France, 2005.11 p.
Nucl. Energy. 2012. Vol. 53. P. 504-515.
7.
Pecthl S., Schmitz G., von Clasow R. // At. Chem. Phys.
16. Simondi-Teisseire B., Girault N., Payot F., Clement B. //
2007. N 7, P. 1381-1393.
Ann. Nucl. Energy. 2013. Vol. 61. P. 157-169.
РАДИОХИМИЯ том 64 № 2 2022